3 Bedroom Terraced
£500,000
Southampton Road, Lymington, SO41

Floorplans For Southampton Road, Lymington, SO41
EPC Graph for Southampton Road, Lymington, SO41

Description


A charming Grade II listed mid-terraced home, full of character, offering three bedrooms, a spacious reception room, and a delightful secluded rear garden. The property also benefits from private parking for one car to the rear. Perfectly positioned in the heart of a historic Georgian market town, it enjoys close proximity to renowned deep-water marinas, world-class yachting facilities, scenic coastal walks, and the beautiful New Forest National Park.

The Georgian market town of Lymington offers cosmopolitan shopping and a picturesque harbour as well as two deep water marinas and outstanding sailing facilities. The town is surrounded by the natural beauty of the New Forest National Park. To the north is the New Forest village of Lyndhurst and Junction 1 of the M27 which links to the M3 for access to London. There is a branch line train link to Brockenhurst Railway Station (approximately 5.5 miles) which provides a half hourly service to London Waterloo with a journey time of approximately 90 minutes.

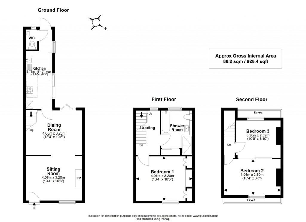
The front door opens directly into a spacious living room, featuring wooden floors, a log burner, and a traditional sash window to the front.  Flowing naturally from here is a bright dining area, positioned beside the kitchen, with elegant double doors opening onto the garden.

The home has been cleverly extended by the current owner to include a stylish modern kitchen with sliding doors opening onto the garden. The kitchen enjoys garden views and is fitted with a range of cabinets and worktops, an induction hob, integrated fridge-freezer, washing machine, and a separate access door to the rear garden.

A staircase leads to the first and second floors, with a charming landing on the first floor offering a window overlooking the garden. The first floor comprises a generous principal double bedroom and a spacious modern family bathroom with a separate shower. On the second floor, two further bedrooms provide comfortable and versatile accommodation.

The attractive walled garden is accessed from the kitchen via sliding doors. Designed for ease of maintenance, it is laid with paving throughout and includes a storage shed, along with a pedestrian gate providing direct access to the private parking area.

Services

Tenure: Freehold

Council Tax: D

EPC: D Current: 67 Potential: 77

Property Construction: Brick elevations & tile roof

Utilities: Mains gas, electric, water & drainage . The water supply is not on a water meter.

Heating: Gas central heating

Broadband: Ultrafast broadband with download speeds of up to 1000mps available at this property (ofcom)

Conservation Area: Lymington, Grade II Listed

Parking: Private driveway, parking is located behind the house and is accessed via Eastern Road.

Spencers of the New Forest

Spencers of the New Forest

74 High Street
Lymington
Hampshire
SO41 9AL

+44 (0)1590 674222

Reference: 29197481

Request a viewing for this property

Simply fill out the form below or alternatively call us on 020 7839 0888

* Mandatory fields