3 Bedroom Detached Bungalow
£495,000
Forest Way, Everton, Lymington, SO41

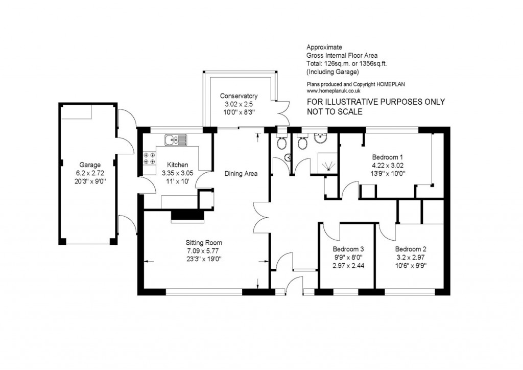
Floorplans For Forest Way, Everton, Lymington, SO41
EPC Graph for Forest Way, Everton, Lymington, SO41

Description


A spacious three-bedroom detached bungalow set on a generous plot tucked in the corner of a quiet close, featuring an open-plan sitting and dining area, a bright conservatory, garage, ample driveway, and off-road parking. Offered with the advantage of vacant possession

Everton is a popular village close to the coastal centres of both Lymington and Milford on Sea. Everton has its own village shop and pub as well as a strong community. To the north lie the open spaces of the New Forest National Park offering countless cycle rides and foot paths. The village of Milford on Sea lies just to the south with an extensive range of bars, restaurants, cafes and bakeries as well as swimming beaches and sailing clubs at Keyhaven.

The well known market town of Lymington lies just to the east and holds a Saturday market as well as offering a wider range of shops and restaurants on its picturesque high street. The town is home to two sailing clubs as well as deep water marinas making it the ideal base from which to explore The Solent and further afield.

A spacious hallway welcomes you into the bungalow, leading through glazed doors to the L-shaped living and dining room. This inviting space features a charming brick mantelpiece with a gas fire, creating a warm focal point. From here, doors open into a sunny, south-facing conservatory offering panoramic views of the garden. The dining area flows seamlessly into a country-style kitchen, complete with garden views, a side access door, space for an oven and fridge/freezer, and integrated appliances including a dishwasher and extractor hood. Bedroom one enjoys peaceful views over the rear garden and benefits from ample fitted wardrobes, offering a sense of tranquillity. Two additional bedrooms are located at the front of the property. All three bedrooms share access to a modern shower room with WC, complemented by a convenient separate WC located adjacent.

To the front, the property features an attractive open lawn with a pathway leading to the main entrance, alongside a driveway providing access to the garage. The south-facing rear garden is of impressive size and fully enclosed with secure fencing. Predominantly laid to lawn, it features vibrant shrub borders, a greenhouse, and a garden shed. The garage is fitted with an electric roller door and benefits from light and power connections as well as space and plumbing for a washing machine.

Services

Tenure: Freehold

Council Tax: D

EPC: D Current: 62 Potential: 77

Property Construction: Brick elevations & tile roof

Utilities: Mains gas, electric, water & drainage

Heating: Gas central heating

Broadband: There is currently no broadband connection but once connected superfast broadband with download speeds of up to 60mbps available at this property (ofcom).

Mobile Signal: Please be aware that mobile network coverage in this area may vary, with some areas experiencing weak signal.

Restrictions: The front gardens have to be left open plan arrangement

Parking: Private driveway

Spencers of the New Forest

Spencers of the New Forest

74 High Street
Lymington
Hampshire
SO41 9AL

+44 (0)1590 674222

Reference: 29104158

Request a viewing for this property

Simply fill out the form below or alternatively call us on 020 7839 0888

* Mandatory fields