2 Bedroom Cottage
£275,000
Gloucester Cottages, Stanton Drew, Bristol, Somerset

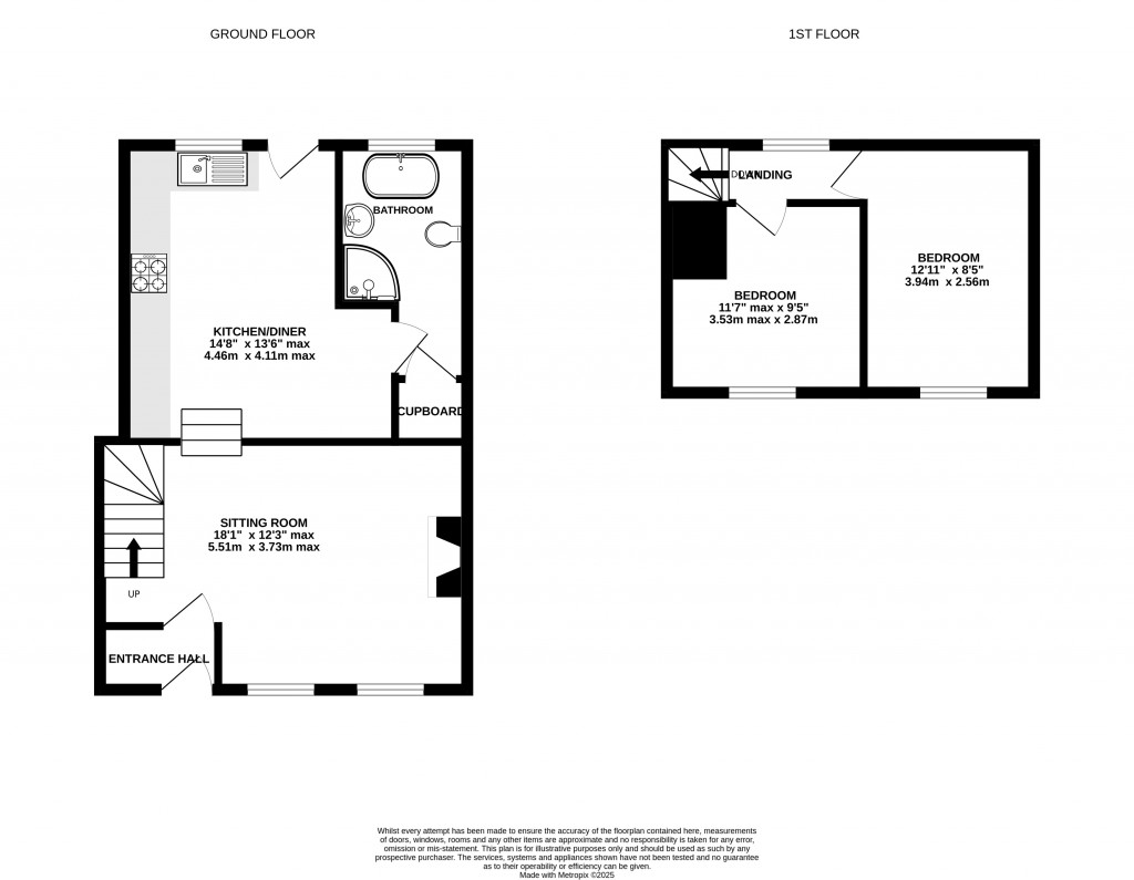
Floorplans For Gloucester Cottages, Stanton Drew, Bristol, Somerset
EPC Graph for Gloucester Cottages, Stanton Drew, Bristol, Somerset}

Description


A charming stone built mid terrace character cottage being offered for sale with no onward chain. The property is located in the sought after village of Stanton Drew with a cottage garden to the rear. The accommodation is arranged over two floors and comprises an entrance lobby with door into a sitting room which has a feature fireplace with wood burning stove and stairs rising to the first floor, kitchen/diner with a range of wall and base units and a door to the garden. In addition to the downstairs is a bathroom with separate shower. To the first floor there are two double bedrooms enjoying views to the front. 

Cooper & Tanner

Cooper & Tanner

Reference: 28984556

Request a viewing for this property

Simply fill out the form below or alternatively call us on 020 7839 0888

* Mandatory fields