3 Bedroom Semi-Detached
£585,000
Lower Pennington Lane, Lymington, SO41

Floorplans For Lower Pennington Lane, Lymington, SO41
EPC Graph for Lower Pennington Lane, Lymington, SO41

Description


An exceptional brand new semi-detached three-bedroom, two bathroom property in a convenient location accessed off a charming leafy lane leading to Lymington's sea wall coastal walks. Built by Harnden Homes and one of only four houses on this private small development moments from Woodside park and within easy reach of the towns amenities including the extensive sailing facilities

Lime Cottage is conveniently positioned for both the centre of Lymington and nearby shops in Pennington which cater for most daily requirements. Lower Pennington Lane is a charming leafy lane which provides direct access to beautiful coastal walks along the Sea Wall. Woodside Park is a short walk away providing open green space as well as recreational and sporting facilities.

Lymington is a renowned sailing centre with a range of sailing clubs and marinas. The town's High Street hosts a weekly Saturday market and offers a wide range of shops, boutiques, cafes and restaurants. The New Forest lies just to the north with extensive walks and cycle rides across its picturesque landscape.

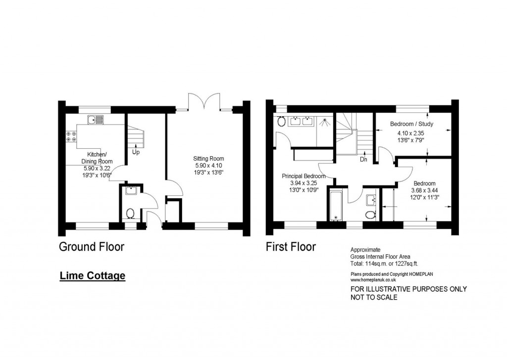
Built by Harnden Homes in early 2025 Lime Cottage is recently completed and ready for immediate, chain free occupation. The interiors have been carefully considered both in terms of light and room proportions as well as having been beautifully finished throughout. The front door opens to a spacious hall with door to wc and stairs to the first floor. There is a utility cupboard with plumbing & space for a washing machine. The sitting room is particularly generous with a dual aspect and French windows to the gardens. The kitchen / dining room features a breakfast bar and a range of fitted units with integrated appliances as well as ample space for a dining table.

On the first floor there is a central landing leading to the main bedroom which has an en suite shower room complete with twin basins and wc. There are two further bedrooms and a family bathroom on this floor.

The house is approached over a gravel drive leading to two private parking spaces adjacent to the house where there is wiring for EV charging points. The level garden faces south west and is fenced at the boundaries and is mostly laid to lawn. There is a paved terrace immediately adjacent to the house and accessed from the sitting room and a storage shed, ideal for bikes & garden furniture.

Services

Tenure: Freehold

Estate Management Charges: This is for the communal parking and landscaped area which is owned by the management company. There are four properties sharing the space, each property contributes 25% of costs per year. Please enquire for further details.

Property Construction: Solid brick and block construction and the roof covering is slate

Mains electricity, water and drainage. There is no gas supply.

Heating: Air source heat pump that runs off electricity. This is for both heating and hot water

Council Tax: TBC EPC: B Current: 81 Potential: 89

Warranty: 10 year structural new build warranty with Build Zone

EV charging point installed

FFTC - Fibre-optic cable to the cabinet, then to the property. Buyer to check broadband speeds with their provider.

Parking: Two parking spaces located within off road car park

Spencers of the New Forest

Spencers of the New Forest

74 High Street
Lymington
Hampshire
SO41 9AL

+44 (0)1590 674222

Reference: 28941401

Request a viewing for this property

Simply fill out the form below or alternatively call us on 020 7839 0888

* Mandatory fields