3 Bedroom Detached
£675,000
Durrant Way, Sway, Lymington, SO41

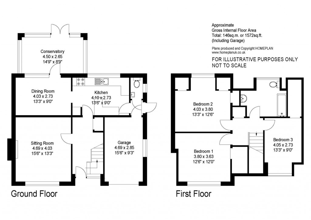
Floorplans For Durrant Way, Sway, Lymington, SO41
EPC Graph for Durrant Way, Sway, Lymington, SO41

Description


A lovely three-bedroom detached family home offered to the market with no onward chain and versatile accommodation with the further benefit of an integral garage and off-street parking for a couple of cars and ideally located in a popular residential cul-de-sac within touching distance of sway village.

You enter the property via the main front door into a welcoming hallway that provides access to all downstairs accommodation and stairs leading to the first floor.

A door immediately on your left takes you into a bright and airy sitting room with feature fireplace. A further door from the hallway takes you through to the kitchen where you have an array of both base and eye level units and space for a cooker, dishwasher and fridge freezer. A door at one end of the kitchen takes you through to a downstairs W/C and access into the garage as well as a side door to the outside.

A useful dining room sits from the kitchen giving superb dining and entertaining space with a further door leading to a conservatory providing views over the garden along with double doors leading out to the grounds.

Stairs from the hallway lead up to the first-floor landing where all the double bedroom accommodation can be found. Bedroom one sits to the front of the house providing a useful inbuilt storage cupboard.

Bedroom two sits to the rear of the property which equally provides inbuilt storage cupboards and bedroom three also provides views to the front of the house and has access to a storage cupboard.

The property is approached by a tarmac driveway that leads to the main front door and garage giving off street parking for a couple of cars. The driveway runs along side a lovely front lawn area interspersed with small hedging and shrubbery with a large hedge at the front border giving the property a sense of privacy.

The rear garden provides a large patio area as well as a good area of lawn with an array of foliage that flank the border with its wooden fence surround. The garden further benefits from a useful shed and secured side access from the front of the house.

Additional Information: 

Tenure: Freehold

Council Tax Band: F

Energy Performance Rating: D Current: 67 Potential: 84

Services: Mains gas, electric, water and drainage

Gas central heating

Property Construction: Standard construction

Flood Risk: Very low

Broadband: Part fibre broadband supplied by Plusnet

Ultrafast broadband with speeds of up 1000 Mbps is available at the property (Ofcom).

Mobile Signal/Coverage: No known issues, buyer to check with their provider for further clarity.

Restrictive Covenants: The front beech hedge needs to be maintained. Applies to all properties in Durrant Way.

Spencers of the New Forest

Spencers of the New Forest

56 Brookley Road
Brockenhurst
Hampshire
SO42 7RA

+44 (0)1590 622551

Reference: 28851142

Request a viewing for this property

Simply fill out the form below or alternatively call us on 020 7839 0888

* Mandatory fields