2 Bedroom Apartment
£475,000
Almansa Way, Lymington, SO41

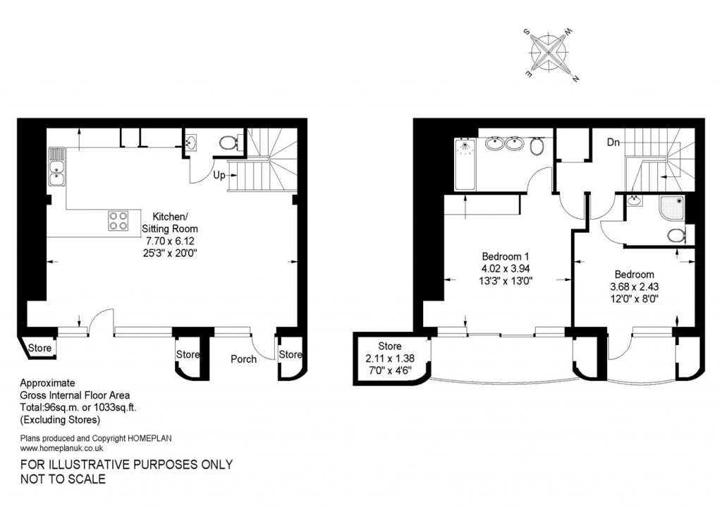
Floorplans For Almansa Way, Lymington, SO41
EPC Graph for Almansa Way, Lymington, SO41

Description


Occupying a prime riverside location in this popular modern development this immaculately presented duplex apartment benefits from two double bedrooms with ensuites, open plan living, views of the Lymington River from two private balconies. With allocated secure parking and a secure entrance system, this property is an ideal "lock-up-an-leave" holiday home or long term rental investment or simply as a lovely location to live & enjoy Lymington.

The apartment's location combines tranquil river views with a convenient proximity to the amenities of the town. Lymington High street is only 500 yards away and offers a range of boutique shops, cafes, restaurants as well as Waitrose and M&S supermarkets. There is easy access to Lymington's world renowned sailing facilities, deep water marinas and clubs. The open spaces of the New Forest lie just to the north and offer glorious walking and cycling. Nearby Lymington's railway station offers branch line services twice an hour to Brockenhurst (5 miles) where there are direct services to London Waterloo in approximately 90 minutes.

The property is approached via the private outdoor terrace area to the front. This immaculate duplex suits modern living with an open plan kitchen/living and dining area.  The main living room is very well designed incorporating the modern kitchen fitted with a range of soft close base cupboards and drawers, matching eye level units with under lights, breakfast bar with ample worksurface space and storage, integrated Siemens appliances include an induction hob, stainless steel oven, fridge/freezer, microwave, fan assisted oven with grill and extraction unit, dishwasher and washer/dryer. The remainder of the room is a well designed dining area/lounge. The addition of a cloakroom completes the ground floor accommodation. 

Stairs lead from the living area to the first floor where there are two double bedrooms. Both double bedrooms have ample fitted storage and private balconies with room for a bistro set from which to enjoy the river views and your morning coffee! Each bedroom benefits from modern ensuite shower rooms with luxury white vanity units. Underfloor heating throughout the property, double glazing, air filtration system are additional benefits to the property. There is a remainder of the NHBC guarantee until September 2027.

The property benefits from an easterly facing private terrace area to the front of the property with enough space for seating/entertaining as well as two storage cupboards. The two balconies offer views towards the Lymington River and nature reserve. There is an attractive path around the Lymington Shores complex and some gated wooden play areas as well as a large green. There is secure underground parking for one car, bike storage and ample visitor parking spaces.  

Services

Tenure: 125 years from 1 January 2012, 11 years remaining

Energy Performance Rating - B Current: 83 Potential: 83

Council Tax Band: F

The ground rent is £300.00 a year

The 2024 service charge/management fee was £2018.97

Mains water, electricity and drainage connected. Heating is via a Heating Interface Unit (HIU) shared by the block.

Spencers of the New Forest

Spencers of the New Forest

74 High Street
Lymington
Hampshire
SO41 9AL

+44 (0)1590 674222

Reference: 28782611

Request a viewing for this property

Simply fill out the form below or alternatively call us on 020 7839 0888

* Mandatory fields