1 Bedroom Apartment
£124,950
Vineys Yard, Bruton, Somerset

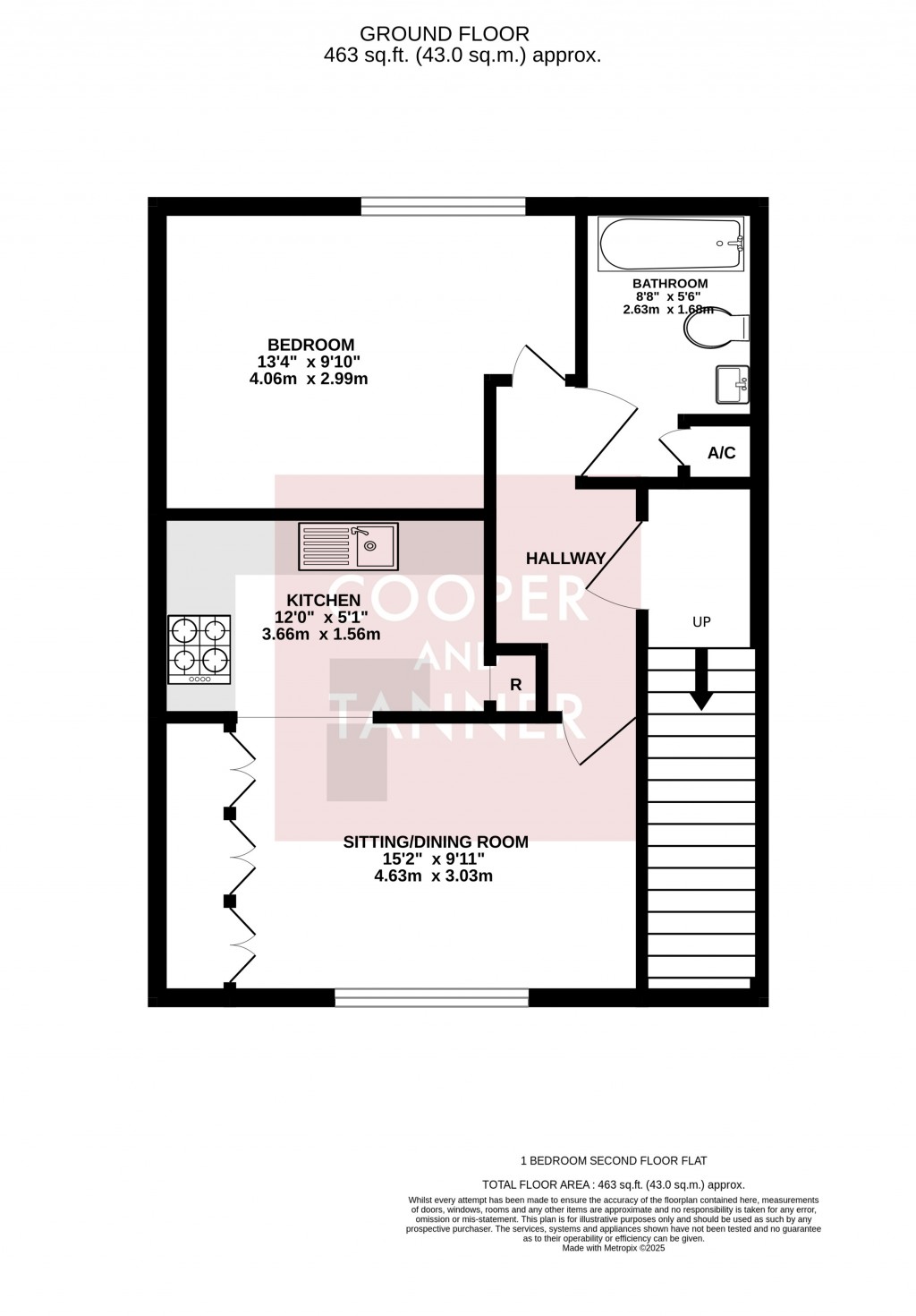
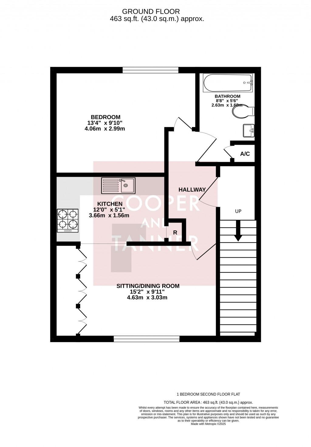
Floorplans For Vineys Yard, Bruton, Somerset
EPC Graph for Vineys Yard, Bruton, Somerset}

Description


Set within easy walking distance of the town centre, this well-presented one-bedroom flat occupies a sought-after second-floor position and enjoys light-filled accommodation with elevated views across the town. The property offers a comfortable and thoughtfully arranged layout, appealing to first-time buyers, downsizers, or investors alike.

The spacious sitting room is bright and inviting, benefitting from an outlook that enhances the sense of space and natural light, while providing an ideal setting for both relaxing and entertaining. The kitchen is well proportioned, with ample worktop space and storage. The generous double bedroom also enjoys open views and easily accommodates freestanding furniture, complemented by a well appointed bathroom.

Externally, the property benefits from allocated parking and is situated within a well-maintained development. Offered in good condition throughout and available with no onward chain, this property presents an attractive and convenient opportunity in a central location.

Cooper & Tanner

Cooper & Tanner

Fore Street
Castle Cary
Somerset
BA7 7BG

+44 (0)1963 350327

Reference: 28607118

Request a viewing for this property

Simply fill out the form below or alternatively call us on 020 7839 0888

* Mandatory fields