3 Bedroom End of Terrace
£1,350 PCM
WATLINGTON

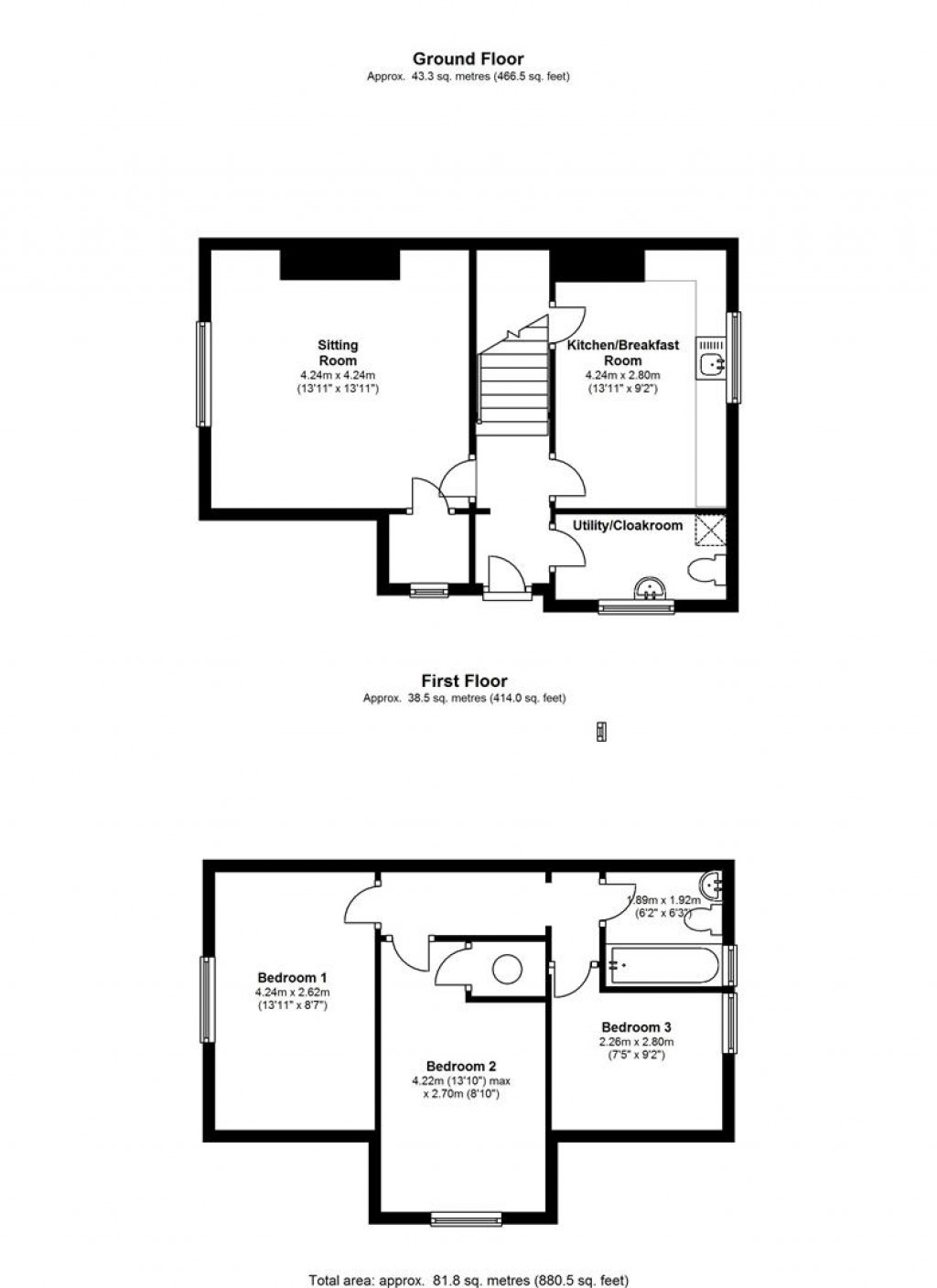
Floorplans For WATLINGTON
EPC Graph for WATLINGTON

Description


A recently refurbished Victorian 3 bedroom cottage with substantial garden occupying a lovely rural setting with good access to the M.40 and only a mile from Watlington. Available early January 2020.

Tenure: Assured Shorthold Tenancy -

Description: - A recently refurbished Victorian 3 bedroom cottage with substantial garden occupying a lovely rural setting with good access to the M.40 and only a mile from Watlington. Available early January 2020.

Watlington - Watlington is reputedly England's smallest town with its origins dating from the 6th century. The town has a range of sports facilities that embrace football and cricket as well as tennis, squash and bowls. There are good local shops including a first class butcher and delicatessen and some excellent restaurants and pubs. Watlington Primary school and Rainbow Corner day nursery and pre-school have an 'outstanding' ofsted rating and senior education is provided by the well-regarded Icknield Community College. The Chiltern Hills rise above the town and offer some of the finest landscapes in south-east England. There is much on offer here for outdoor enthusiasts, cyclists and walkers as The Icknield Way (Ridgeway National Trail) passes close to the town. Watlington is also the heartland of the re-introduced Red Kite that now soar above the town's roof tops.

The Accommodation Is Arranged As Follows: - (All measurements are approximate)

Ground Floor -

Entrance: - Solid wood front door to:

Hall: - Cupboard housing electricity consumer unit. Door to:

Utility/Cloakroom: - Low flush WC and washbasin. Space for utilities. Oil fired boiler.

Sitting Room: - 4.24 x 4.24 (13'10" x 13'10") - With outlook to front approach. Fireplace with wooden mantelshelf. Door to large walk-in cupboard with fitted shelving, window and internal light.

Kitchen/Breakfast Room: - 4.24 x 2.80 (13'10" x 9'2") - South facing with outlook to the garden. Understairs storage cupboard. Fitted wall and base cabinets comprising cupboards and drawers with worktops and tiled splashbacks. Inset sink unit with mixer tap and drainer. Space and point for electric cooker and utilities. Ceiling mounted tracked halogen spotlights.

First Floor -

Landing: - Access hatch to loft. Door to:

Bedroom 1: - 4.24 x 2.62 (13'10" x 8'7") - Having a fireplace with Edwardian cast iron grate and mantleshelf.

Bedroom 2: - 4.22 x 2.70 (13'10" x 8'10") - Having a cupboard housing an insulated hot water tank with immersion heater.

Bathroom: - Panel enclosed bath with mixer tap and shower attachment. Low flush WC and washbasin with mixer tap in vanity unit. Overhead shaving light and extractor fan.

Bedroom 3: - 2.80 x 2.26 (9'2" x 7'4") -

Outside -

Store: - Brick built with pitched roof.

Garden: - A substantial garden lies to the rear and side of the property enclosed by close-boarded fencing.

Services: - Mains water, drainage and electricity. Oil Fired Central Heating.

Local Authority: - South Oxfordshire District Council. Council Offices, Crowmarsh, Wallingford OX10 8HQ. Tel: 01491 823 000

Council Tax: - Band: C

Viewing: - Strictly by appointment with the agents - Robinson Sherston (Watlington). Telephone: 01491 614 000

Directions: - From Watlington drive north on the B4009 towards junction 6 of the M.40. After no more than one mile take the turning right into Blenheim Road and the property will be found a short distance on your right

Terms & Conditions -

Furnishings: - The property is offered unfurnished.

Availability: - Available early January 2020 on an Assured Shorthold Tenancy with a minimum fixed period of six months. Long tenancy preferred.

Management Status: - Robinson Sherston do not manage this property.

Conditions: - Not suitable for: Smokers

Rent Agreement: - Rent is payable per calendar month in advance, exclusive of Council Tax and all connected utility services.

Inventory - An inventory recording the condition and contents of the property will be provided.

Deposit: - A security deposit of a maximum of five weeks rent to be held throughout the term of the tenancy as security against damage or any breach of agreement by the Tenant.

Marketing: - Robinson Sherston reserve the right to continue to market the property until the Registration fee is received, even where the terms of a Tenancy have been agreed in principle.

Important Note: - These particulars do not form part of any offer or contract. They are for guidance only and have been prepared in all good faith to give a fair overall view of the property. Our descriptions are opinions and not statements of fact and tenants should satisfy themselves whether or not such descriptions match any expectations they may have of the property. Please ask for further information or verification of points relevant to your interest. All measurements, distances and aspects are given as a guide only and are approximate. If such details are fundamental to the letting, tenants must rely on their own enquiries, as they must where any reference is made to potential uses. At the time of preparing these particulars no specific tests were made and tenants should satisfy themselves that the property and any services, appliances, equipment or facilities are in good working order. It should not be assumed that the property remains as depicted; nor should any assumption be made with regard to the parts of the property that have not been depicted. The images depict only certain parts of the property and it should not be assumed that any of the furniture, furnishings or personal items are included in the letting.

Robinson Sherston

Robinson Sherston

One High Street
Watlington
Oxfordshire
OX49 5PH

+44 (0)1491 614000

Reference: 28377520

Request a viewing for this property

Simply fill out the form below or alternatively call us on 020 7839 0888

* Mandatory fields