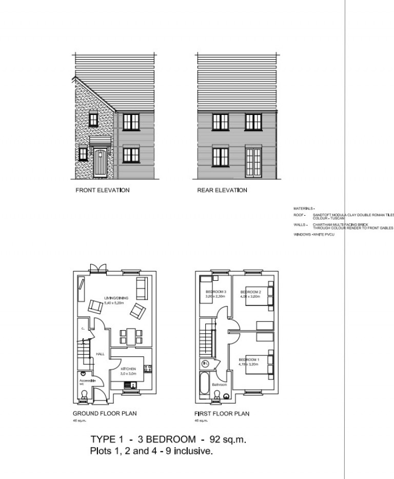
3 Bedroom Terraced House
£300,000
Station Road, Castle Cary, Somerset

Description


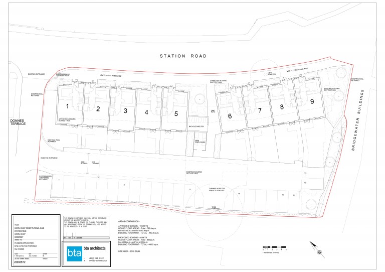
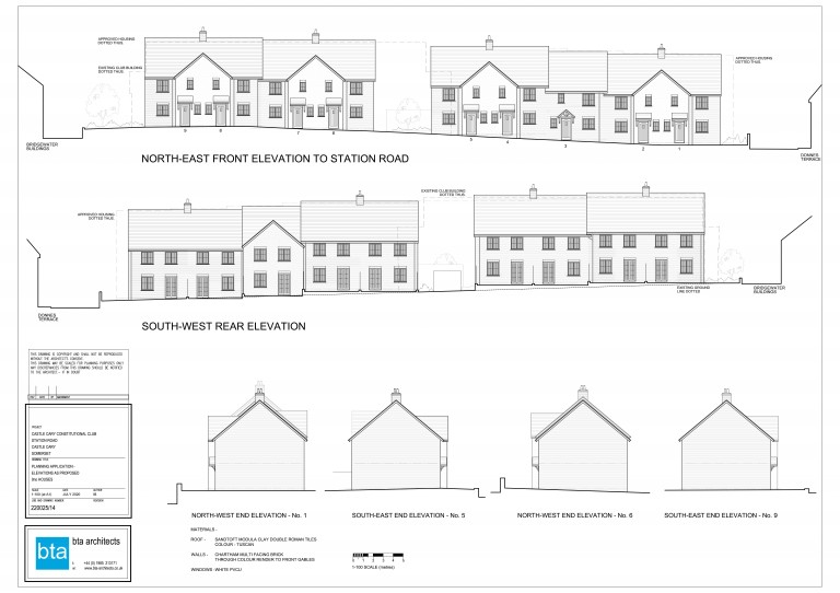
We are proud to announce a stunning new-build development in what used to be the Constitutional Club in Castle Cary. The site is being marketed off plan, with completion for the build estimated to be early autumn. The site will feature nine, three bedroom properties all with rear gardens, allocated parking and coming with a full 10 Year NHBC warranty.

Cooper & Tanner

Cooper & Tanner

Fore Street
Castle Cary
Somerset
BA7 7BG

+44 (0)1963 350327

Reference: 28364895

Request a viewing for this property

Simply fill out the form below or alternatively call us on 020 7839 0888

* Mandatory fields