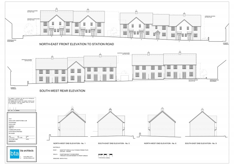
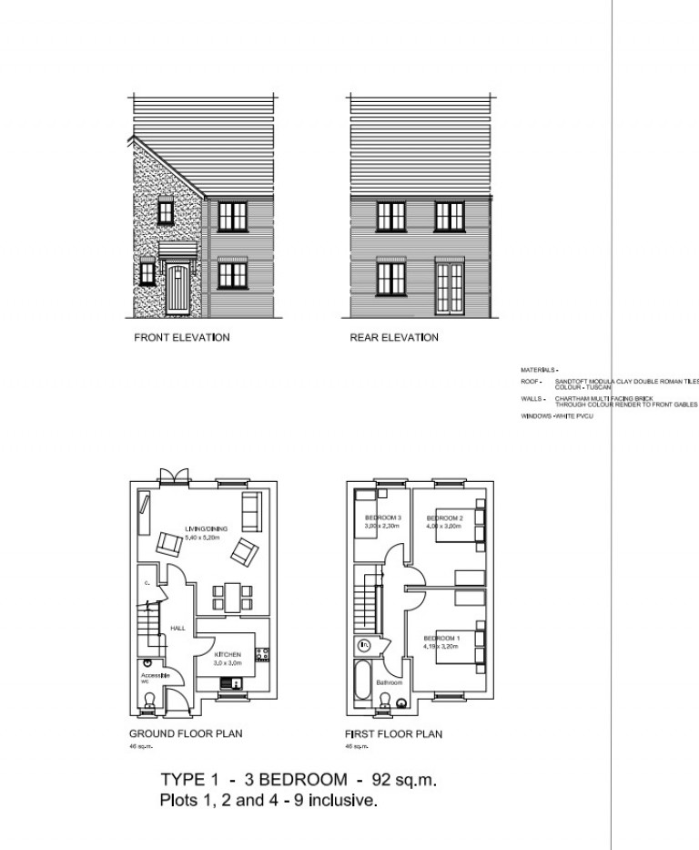
3 Bedroom Terraced House
£300,000
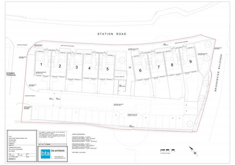
Station Road, Castle Cary, Somerset

Floorplans For Station Road, Castle Cary, Somerset

Description


We are delighted to bring to the market this development of beautifully presented and finished terraced houses in the heart of Castle Cary. This development offers a wonderful opportunity to secure an off plan property in readiness for an early autumn 2025 completion.

Cooper & Tanner

Cooper & Tanner

Fore Street
Castle Cary
Somerset
BA7 7BG

+44 (0)1963 350327

Reference: 28364894

Request a viewing for this property

Simply fill out the form below or alternatively call us on 020 7839 0888

* Mandatory fields