4 Bedroom Semi-Detached
£425,000
Pamplyn Close, Lymington, SO41

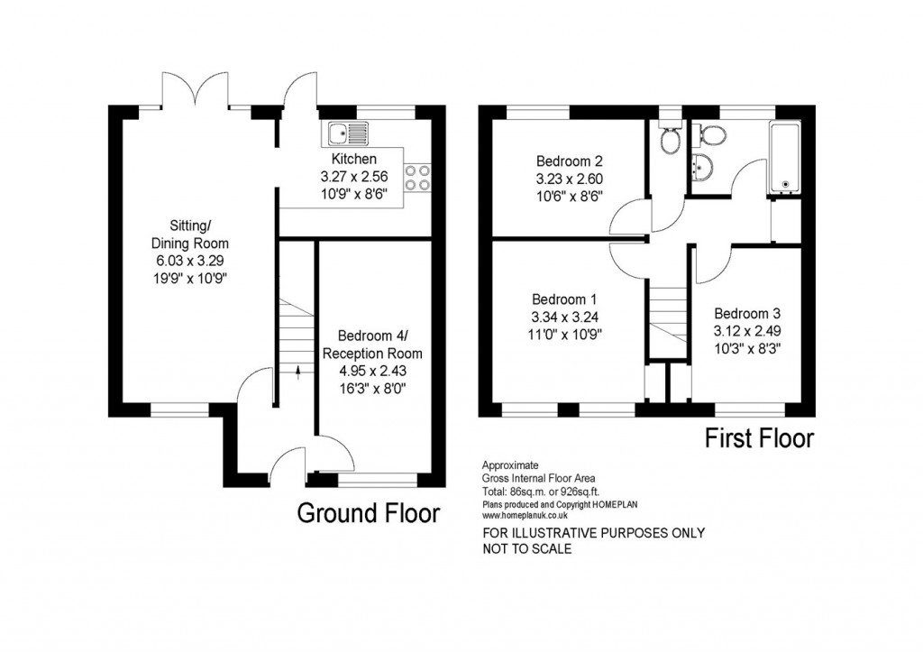
Floorplans For Pamplyn Close, Lymington, SO41
EPC Graph for Pamplyn Close, Lymington, SO41

Description


A well-presented four-bedroom semi-detached home, offering off-street parking for two cars and a low-maintenance rear garden with side access. Conveniently located within easy walking distance of Lymington town centre.

The property is approximately 1.3 miles from the popular sailing and yachting facilities of Lymington and access to the Solent is within just a few minutes drive. The Georgian market town of Lymington has a famous Saturday market and there is a ferry service to Yarmouth, Isle of Wight. The village of Brockenhurst lies approximately 4 miles north and benefits from a mainline station with direct access to London Waterloo and an extensive range of local shops, restaurants, a primary school, a popular tertiary college and the renowned Brockenhurst Golf Club.

The entrance porch provides convenient space for hanging coats and storing shoes, with a door leading into the open-plan dining/living room and to the fourth bedroom, which was originally the garage. The main living/dining room is dual-aspect, bright, and inviting, featuring doors to the rear garden and access to both the modern kitchen and a useful understairs cupboard. The kitchen is well equipped with generous storage and cabinetry, including integrated appliances such as a fridge/freezer, cooker with ceramic hob, and extractor hood, along with space and plumbing for a washing machine. It also benefits from a door opening onto the rear patio.

The principal bedroom, situated at the front of the property, benefits from a bright southerly aspect and offers generous space for wardrobes, including a fitted cupboard. Two additional bedrooms are located on this floor, served by a contemporary family bathroom featuring a pea-shaped bath with an overhead shower. The first floor features a separate WC for added convenience. An airing cupboard provides convenient storage on this level.

The property is accessed via a driveway, providing parking for two vehicles. A gated side entrance leads to the rear garden, which is designed for low maintenance with a patio area and artificial turf. Additionally, a shed is available for extra storage.

Additional Information

Tenure: Freehold

Council Tax: C

EPC: C Current: 69 Potential: 88

Property Construction: Brick and tile roof

Utilities: Mains gas, electric, water & drainage

Heating: Gas central heating

Broadband: FFTP - Fibre to the property directly. Ultrafast broadband with speeds of up to 1000mbps is available at this property.

Parking: Private driveway

Spencers of the New Forest

Spencers of the New Forest

74 High Street
Lymington
Hampshire
SO41 9AL

+44 (0)1590 674222

Reference: 28341288

Request a viewing for this property

Simply fill out the form below or alternatively call us on 020 7839 0888

* Mandatory fields