2 Bedroom Semi-Detached
£474,995
East End, Lymington, SO41

Floorplans For East End, Lymington, SO41 Floorplans For East End, Lymington, SO41
EPC Graph for East End, Lymington, SO41

Description


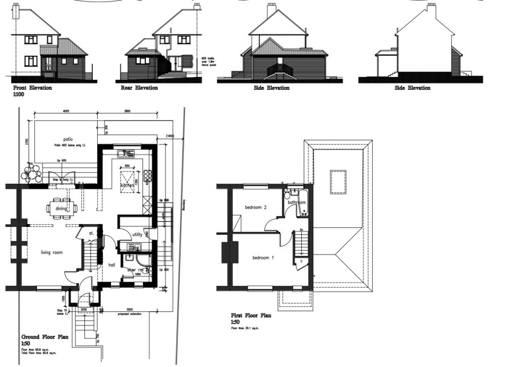
A charming two bedroom semi-detached forest home with tremendous opportunity to complete the single story extension which has full planning and has been partly completed. The property is located in the charming hamlet of East End, in the middle of the National Park, moments from Lymington.

The property is within close proximity to Beaulieu village centre and Bucklers Hard. The Georgian market town of Lymington lies to the west with its sought after marinas and yacht clubs. There is also a popular marina at nearby Buckler’s Hard. The Beaulieu River Sailing Club is within one mile and offers opportunities for sailing enthusiasts, as well as the Royal Southampton Yacht Club's summer club known as, Gins Farm in nearby St Leonard’s. The property also lies within the catchment area for South Baddesley school as well as Priestlands School being on the bus route.

The front door opens to the hallway with stairs to the first floor. The lounge is a delightful room with a large window to the front, feature fireplace with log burner, recessed shelving and a large cupboard providing storage under the stairs. The kitchen is off the lounge with a southerly garden aspect, a range of fitted cupboards and work tops with a breakfast bar, space for fridge freezer, plumbing for washing machine, electric cooker point. There is also a large storage cupboard and separate cloakroom. A door leads out to the new extension providing a further 22 sq meters of accommodation. This new section of the house has full planning permission and has been started with foundations laid and the ground levels complete, but will require completion of walls and roof. The new extension allows for a large kitchen or family room, utility and shower room and will transform the house to a modern, spacious home. 

The stairs rise to the first floor with a landing, master bed to the front with twin windows and a fitted cupboard. Bedroom two is also a double with garden views and a fitted wardrobe. The modern white bathroom suite completes the accommodation.

The property is set in a small cul-de-sac and is approached via a picket fence and double entrance gate. The frontage has a lawned garden with attractive flower bed and a spacious driveway providing ample parking. The South facing rear garden is again laid to lawn with mature shrubs, fence borders, wooden garden shed and a concrete hard standing surrounding by trees with far reaching forest views.

Services

Tenure: Freehold

Council Tax - C

EPC - E Current: 50 Potential: 79

Property Construction: Brick elevations with tile roof

Utilities : Mains Electric/water/drainage (no gas supply)

Telephone Line currently disconnected

Heating: Electric & solid fuel heating

Broadband: Basic broadband with speeds of up to 18 mbps is available at this property

(ofcom)

Mobile signal / coverage: Please check with your provider (poor reception area)

Conservation Area: Yes, Forest South East

Flood Risk: No risk

Parking: Private driveway

NFDC Planning Application Number 23/00340FULL

Spencers of the New Forest

Spencers of the New Forest

74 High Street
Lymington
Hampshire
SO41 9AL

+44 (0)1590 674222

Reference: 27967630

Request a viewing for this property

Simply fill out the form below or alternatively call us on 020 7839 0888

* Mandatory fields