Plot
£450,000
Crowhurst, Battle, East Sussex

Description


NOTE: The owners have paid the CIL payment and £95,000 will be payable in addition to the sale price.

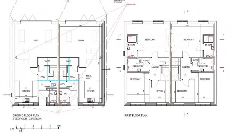
The foundations have been commenced at this development site for four three bedroom semi detached houses that occupy a tucked away location in the centre of the village granted under planning reference: RR/2020/945/P.  The planning allows for a new private driveway, parking and two pairs of three bedroom semi detached houses of circa 93 sq.m.  The proposed accommodation will provide a reception hall, cloakroom and large open plan kitchen, living, dining area to the ground floor with three first floor bedrooms, the master with en-suite and separate bathroom.  Outside a new driveway will provide access to turning and parking and each of the properties will enjoy gardens to the rear with an attractive rural outlook.  For further details or to arrange a site visit please contact us on 01424 774774. 

Note: We are advised that all pre-commencement conditions, including the service water strategy and mains drains connections have been designed and approved.  

Campbell's

Campbell's

74 High Street
Battle
East Sussex
TN33 0AG

+44 (0)1424 774774

Reference: 27753203

Request a viewing for this property

Simply fill out the form below or alternatively call us on 020 7839 0888

* Mandatory fields