4 Bedroom Detached
£749,000
Exbury Road, Beaulieu, Brockenhurst, SO42

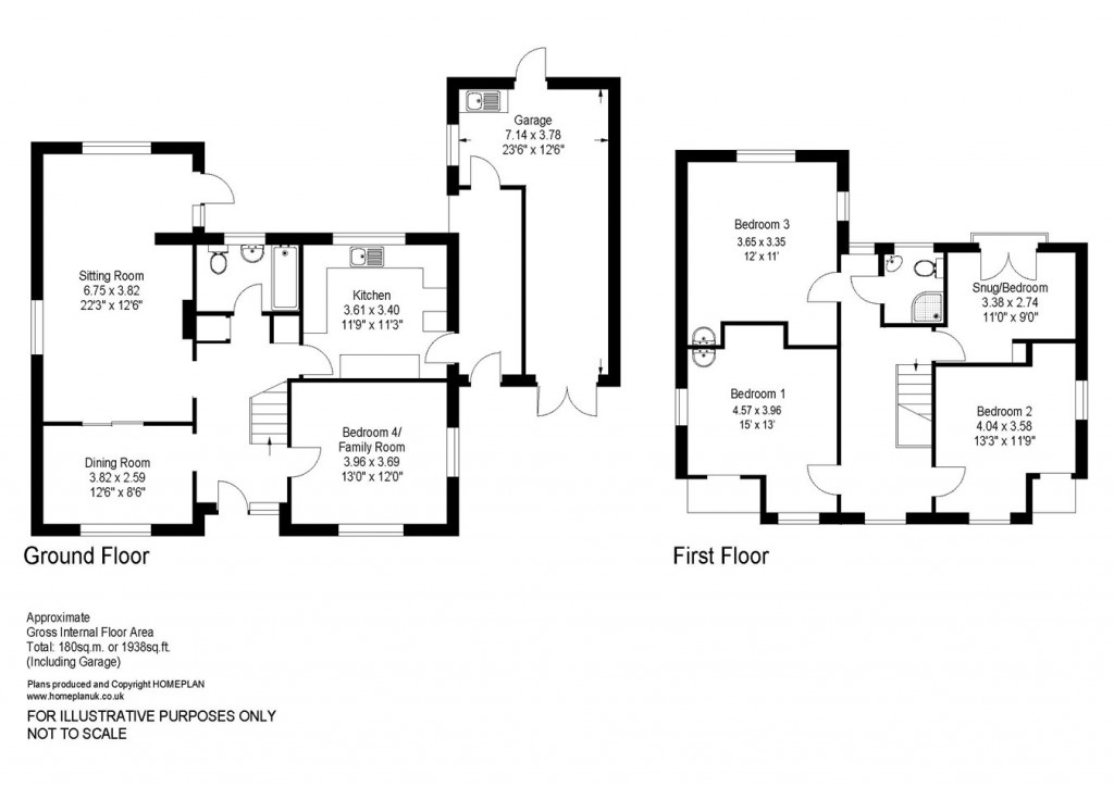
Floorplans For Exbury Road, Beaulieu, Brockenhurst, SO42
EPC Graph for Exbury Road, Beaulieu, Brockenhurst, SO42

Description


Immersed in the heart of the New Forest National Park. This beautiful 4/5 bedroom detached home has been lovingly cared for by the current owners and is a wonderful retreat. The property enjoys a garden full of wildlife and colourful shrubs and backs onto the Beaulieu Estate offering a picturesque leafy outlook to the rear and far reaching views over the open forest to the front.

The property is situated at the end of a private forest track on the edge of Beaulieu estate and adjoins the open forest. Beaulieu village is close by and offers a range of local amenities, restaurant’s and tearooms and a primary school. The Georgian market town of Lymington lies approximately 7 miles to the west with its marinas and yacht clubs. There is also a popular marina at nearby Bucklers Hard. Approximately 4 miles away is Brockenhurst village which offers a mainline railway station with direct links to London Waterloo in approximately 90 minutes and a good local community of shops and restaurants. Historic Hythe village is 3 miles to the east with its ferry to Southampton, Supermarkets and pedestrianised high street. There are recreation centres at Applemore 3 miles and Calshot on the coast 6 miles away.

The entrance door opens into the welcoming reception hall which leads through to the dining room and spacious living room. The living room is the hub of the house with wonderful leafy views of the garden and a wood burning stove providing a warming focal point to the room and a door leading to the sunny patio area.

The kitchen is fitted with a range of eye and base level storage cupboards, space for a range cooker and dishwasher with views of the attractive rear garden.

There is a door leading out into the lobby connecting to the garage which houses a utility area with space and plumbing for a washing machine and tumble dryer.

To the ground floor there is also a spacious dual aspect family room which could alternatively be used as a ground floor double bedroom and finally a family bathroom with WC.

Stairs from the hallway lead to the landing with doors opening to three double bedrooms, a fourth single bedroom or study with a Juliette balcony offering spectacular views of the garden. Bedroom two has access to the boarded loft. The family shower room completes the accommodation on this floor.

Wooden double gates lead to an extensive area of shingled off road parking and the detached single garage. There is mature hedging along the front boundary.

The rear garden is an oasis for nature and enjoys an area of lawn, woodland back drop interspersed with a variety of planted borders and mature trees and shrubs providing year-round colour. There is a garden terrace for entertaining.

Additional Information:

Tenure: Freehold

Council Tax Band: F

Energy Performance Rating: D Current: 56 Potential: 72

Mains electric and water

Oil fired heating

Private drainage: Septic tank

Broadband: ADSL Copper-based phone landline, Fibre-optic cable to the cabinet, then to the property

Superfast broadband with speeds of up to 80 Mbps is available at the property (Ofcom)

Mobile coverage: No known issues, buyer to check with their provider

Spencers of the New Forest

Spencers of the New Forest

74 High Street
Lymington
Hampshire
SO41 9AL

+44 (0)1590 674222

Reference: 27564170

Request a viewing for this property

Simply fill out the form below or alternatively call us on 020 7839 0888

* Mandatory fields