Residential Land
£1,750,000
Vinehall Road, Robertsbridge, East Sussex

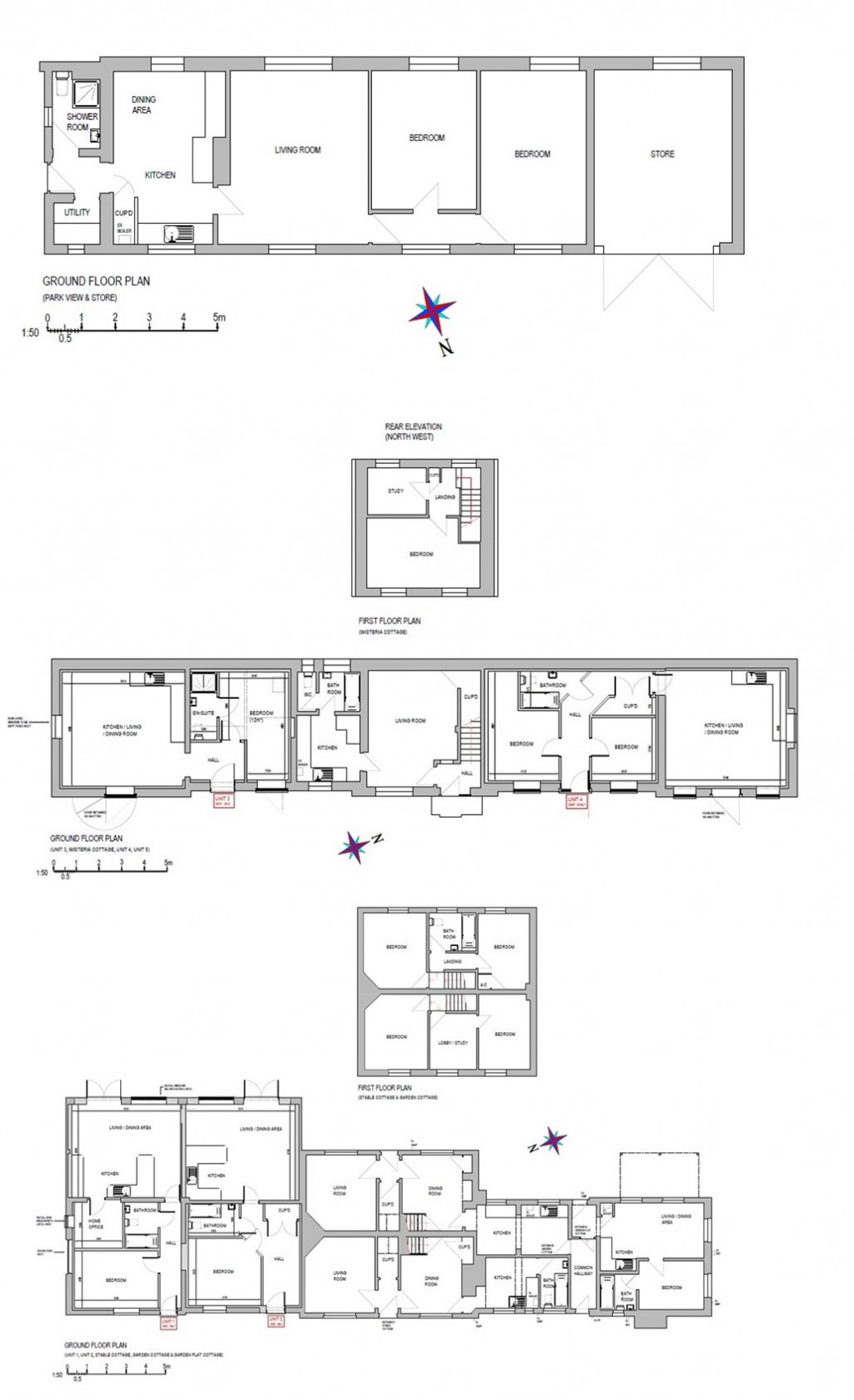
Floorplans For Vinehall Road, Robertsbridge, East Sussex

Description


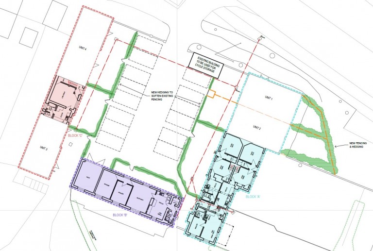
An attractive complex of period buildings that comprise five units let under Assured Shorthold Tenancies with planning permission in place Ref: RR/2002/2991/P to convert four additional units.  The existing properties are let and producing a below market rental of £53,340 per annum.  All the converted units offer potential and are presented in reasonable order with gas central heating, parking and gardens.  The four unconverted units have planning permission to create three 1 bedroom units and one 2 bedroom unit.  

The existing buildings are arranged around an attractive courtyard that provides parking and an additional driveway leads round to a further section of ground where there is additional parking and a large area of level lawn that may offer some potential, subject to any necessary consent.

This is an interesting development opportunity that not only offers the opportunity to create additional dwellings but also to improve and upgrade the existing properties and enhance the rental yields.

NOTE: We are advised the property shares the drainage system with Vinehall School and is liable for a 5% contribution towards any upkeep.

Campbell's

Campbell's

74 High Street
Battle
East Sussex
TN33 0AG

+44 (0)1424 774774

Reference: 26721479

Request a viewing for this property

Simply fill out the form below or alternatively call us on 020 7839 0888

* Mandatory fields