2 Bedroom End of Terrace
£1,265 PCM
Shirburn

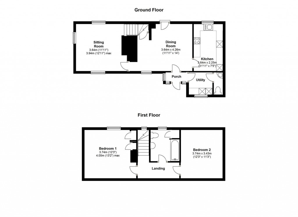
Floorplans For Shirburn

Description


A charming attached period cottage occupying a quiet and attractve rural setting with a sizeable garden close to Watlington and only a mile from the M.40. Available end January

Tenure : Assured Shorthold Tenancy -

Description: - A charming and recently refurbished attached period cottage occupying a quiet and attractive rural setting with a sizeable garden close to Watlington and only a mile from the M.40.

Location: - Watlington is an historic and attractive market town at the foot of the Chiltern Hills. Apart from an ample range of local shops, facilities include a public library, schools, surgery and sports amenities. Junction 6 of the M40 is within a few miles of the town providing easy access to the Midlands, London and the regional business centres of Oxford and High Wycombe.

The Accommodation Is Arranged As Follows: - (All measurements are approximate)

Ground Floor -

Entrance: - Part glazed door to:

Porch - With double-glazed half sections and solid wood door to dining hall. Door to:

Utility Room: - Fitted granite effect worktop with plumbing point and space for washing machine and tumble dryer below. Oil fired boiler. Extractor fan and window to front approach. Door to:

Cloakroom: - Low flush WC and corner washbasin with splashback.

Dining Room: - 4.26 x 3.64 (13'11" x 11'11") - Fireplace (sealed) with quarry tile hearth and understairs storage cupboard. Attractive beamed ceiling and half glazed door to the terrace and garden. Wall lights. Door to sitting room and door to:

Kitchen: - 3.64 x 2.25 (11'11" x 7'4") - Fitted wall and base cabinets comprising cupboards and drawers with granite effect worktops and ceramic tile splashbacks. Inset stainless steel sink unit with mixer tap and drainer. Point and space for electric cooker, dishwasher and refrigerator/freezer. Recessed downlights.

Sitting Room: - 3.94 x 3.64 (12'11" x 11'11") - Triple aspect. Fireplace with quarry tile hearth having a log burning stove. Wall lights and TV point. Staircase to first floor.

First Floor -

Landing: - Well lit by a roof light. Recessed downlights. Door to:

Bedroom 1: - 4.00 (max) x 3.74 (13'1" (max) x 12'3") - With an attractive south-facing outlook over the garden. Double wardrobe with hanging rail. Recessed downlights and access hatch to roof space.

Bathroom: - Panel enclosed bath in tiled surround with overhead shower fitting, rail, curtain and glazed side screen. Low flush WC and pedestal washbasin with splashback and shaving light over. Airing cupboard with slatted shelving. Extractor fan and recessed downlights. South facing window.

Bedroom 2: - 3.74 x 3.43 (12'3" x 11'3") - With attractive south facing outlook over the garden. Access hatch to roof space and recessed downlights.

Outside -

There is a gravelled driveway approach from the access road providing ample off-road parking. A picket fence and gate lead into an area of lawn that fronts the cottage with a path to the front door. A side passageway provides access to the rear garden. Oil storage tank.

Garden: - 19 (62'4") - The principal area of garden has been attractively landscaped. It lies to the rear and is south facing and enclosed by close-boarded fencing. A stone paved terrace extends from the rear of the cottage to an area of lawn with well-stocked herbaceous beds and borders. There is a small ornamental pond, pergola and timber screen.

Services: - Mains water, drainage and electricity. Oil fired central heating.

Local Authority: - South Oxfordshire District Council. Council Offices, Crowmarsh, Wallingford OX10 8HQ. Tel: 01491 823 000

Council Tax: - Band:

Viewing: - Strictly by appointment with the agents - Robinson Sherston (Watlington). Telephone: 01491 614 000

Terms & Conditions -

Availability: - Available end of January on an Assured Shorthold Tenancy with a minimum fixed period of six months. Long tenancy preferred.

Furnishings: - The property is offered unfurnished.

Fees: - The in-going tenant will be responsible for the payment of the following fees, which are not refundable. Registration and agreement fee of £180 (inc VAT) as a contribution towards the costs of preparing the tenancy agreement. References: £30 (inc VAT) per person, company tenant or guarantor. Inventory Fees: Unfurnished - Between £96 and £192 inc VAT, depending on property size. Furnished - Between £108 and £216 inc VAT, depending on property size. Note: Unusually large or heavily furnished properties may be subject to higher costs. The tenant shall pay stamp duty, where applicable

Rent Agreement: - Rent is payable per calendar month in advance, exclusive of Council Tax and all connected utility services.

Deposit: - A security deposit of one and a half month's rent to be held throughout the term of the tenancy as security against damage or any breach of agreement by the Tenant. A minimum 2 months deposit will be held if the tenant has a pet at the property.

Management Status: - Robinson Sherston do not manage this property.

Conditions: - Not suitable for: Smokers

Inventory - An inventory recording the condition and contents of the property will be provided and the tenant will share with the landlord the charge for checkingin at the commencement of the tenancy. Upon termination a check-out will be arranged and paid for by the tenant. The tenant shall pay stamp duty where applicable.

Marketing: - Robinson Sherston reserve the right to continue to market the property until the Registration fee is received, even where the terms of a Tenancy have been agreed in principle.

Important Note: - These particulars do not form part of any offer or contract. They are for guidance only and have been prepared in all good faith to give a fair overall view of the property. Our descriptions are opinions and not statements of fact and tenants should satisfy themselves whether or not such descriptions match any expectations they may have of the property. Please ask for further information or verification of points relevant to your interest. All measurements, distances and aspects are given as a guide only and are approximate. If such details are fundamental to the letting, tenants must rely on their own enquiries, as they must where any reference is made to potential uses. At the time of preparing these particulars no specific tests were made and tenants should satisfy themselves that the property and any services, appliances, equipment or facilities are in good working order. It should not be assumed that the property remains as depicted; nor should any assumption be made with regard to the parts of the property that have not been depicted. The images depict only certain parts of the property and it should not be assumed that any of the furniture, furnishings or personal items are included in the letting.

Robinson Sherston

Robinson Sherston

One High Street
Watlington
Oxfordshire
OX49 5PH

+44 (0)1491 614000

Reference: 26614217

Request a viewing for this property

Simply fill out the form below or alternatively call us on 020 7839 0888

* Mandatory fields