3 Bedroom Semi-Detached
£485,000
Woodley Gardens, Lymington, SO41

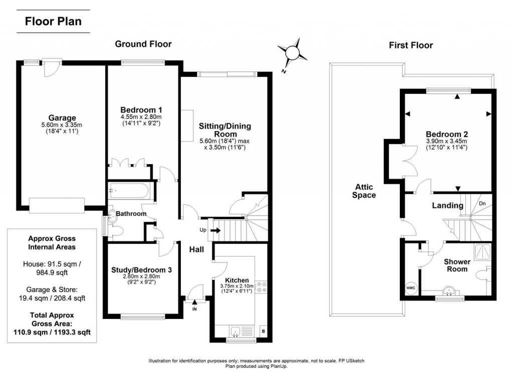
Floorplans For Woodley Gardens, Lymington, SO41
EPC Graph for Woodley Gardens, Lymington, SO41

Description


A modern semi detached house located in a close offering a spacious sitting/dining area, three good sized bedrooms, two bathrooms and a fitted kitchen. Outside, there is a well maintained south facing rear garden and an adjacent large garage. Conveniently located to Lymington town centre and within catchment of the local schools.

The Property:

This nicely presented semi detached house offers good sized, modern accommodation. The front door opens in to a hallway with all of the principle ground floor rooms leading off. The sitting room faces south and has sliding patio doors overlooking the lawned rear garden. The kitchen overlooks the well maintained front garden with a range of fitted cupboard units and worktops, fitted oven, ample space for a fridge freezer and plumbing for washing machine and dishwasher. There is a modern wall mounted gas boiler providing hot water and central heating. The ground floor has two double bedrooms, one with a front aspect and one with garden views and modern bathroom suite. Stairs rise to the first floor and in to the large master bed with a shower room across the landing. There is a spacious walk in loft area which can comfortably become an ensuite for the master bed as well as a separate study subject to the relevant planning. 

Grounds & Gardens:

The house is positioned in a quite close with a drive leading up to private parking and a spacious garage. The front garden has well tended mature plantings and a lovely outlook across the communal grounds. The residential gardens are immaculately maintained as part of the annual service charge. The garage leads through to the south facing rear garden which s mainly lawned with small shrubs, bushes and further colourful plantings.

Additional Information:

Energy Performance Rating: C Current: 72 Potential: 86

Council Tax Band: D

All mains services connected

Service charge for the upkeep of the communal gardens is £462 per annum

Situation:

The beautiful Georgian market town of Lymington with its cosmopolitan shopping and picturesque harbour is within easy reach of the property. Also within walking distance are the two large deep water marinas and sailing clubs for which the town has gained its status as a world renowned sailing resort, as well as an open-air seawater bath that was built in 1833. Lymington has a number of independent shops including some designer boutiques and is surrounded by the outstanding natural beauty of the New Forest National Park. On Saturday, a market is held in the High Street, the origins of which probably date back to the 13th century. To the north is the New Forest village of Lyndhurst and Junction 1 of the M27 which links to the M3 for access to London. There is also a branch line train link to Brockenhurst Railway Station (approx. 5.5 miles) which gives direct access to London Waterloo in approximately 90 minutes.

Spencers of the New Forest

Spencers of the New Forest

74 High Street
Lymington
Hampshire
SO41 9AL

+44 (0)1590 674222

Reference: 26522124

Request a viewing for this property

Simply fill out the form below or alternatively call us on 020 7839 0888

* Mandatory fields