3 Bedroom Detached House
£485,000
Godney, Nr Wells, Somerset

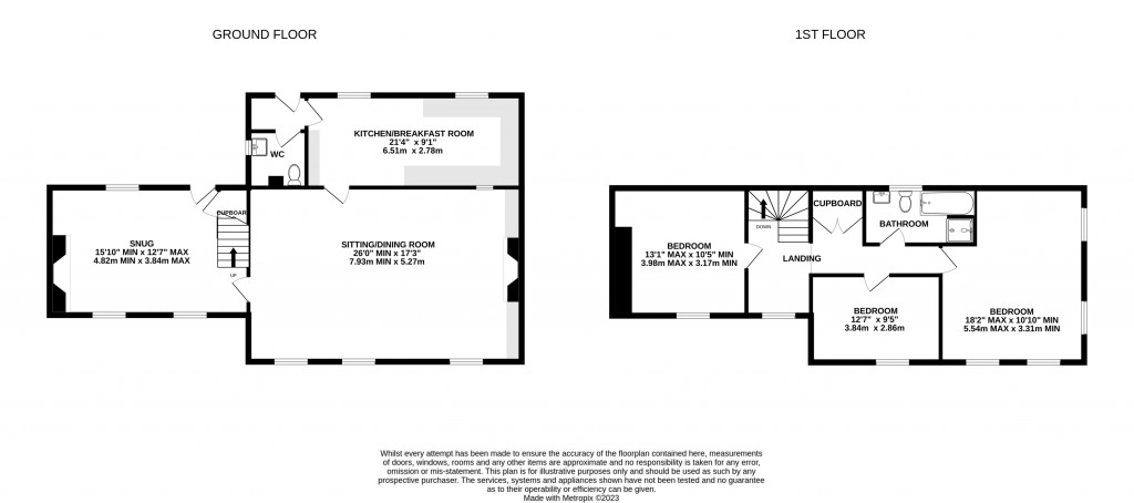
Floorplans For Godney, Nr Wells, Somerset
EPC Graph for Godney, Nr Wells, Somerset}

Description


Situated by the River Sheppey with countryside views, this detached, character cottage benefits from spacious accommodation with private gardens, off road parking, and is brought to market with no onward chain. The ground floor accommodation is comprised of an entrance lobby, cloakroom WC, kitchen/breakfast room, spacious and versatile sitting/dining room, and a snug. Stairs lead to three double bedrooms, storage, and a family bathroom on the first floor. The South facing garden, which enjoys views to Glastonbury Tor, is mainly laid to lawn, with a large patio and a number of mature shrubs. A wall separates the garden from the extensive parking area and a charming World War Two Pillbox.

Cooper & Tanner

Cooper & Tanner

41 High Street
Glastonbury
Somerset
BA6 9DS

+44 (0)1458 831077

Reference: 26064093

Request a viewing for this property

Simply fill out the form below or alternatively call us on 020 7839 0888

* Mandatory fields