2 Bedroom Flat
£1,050 PCM
Britwell Salome

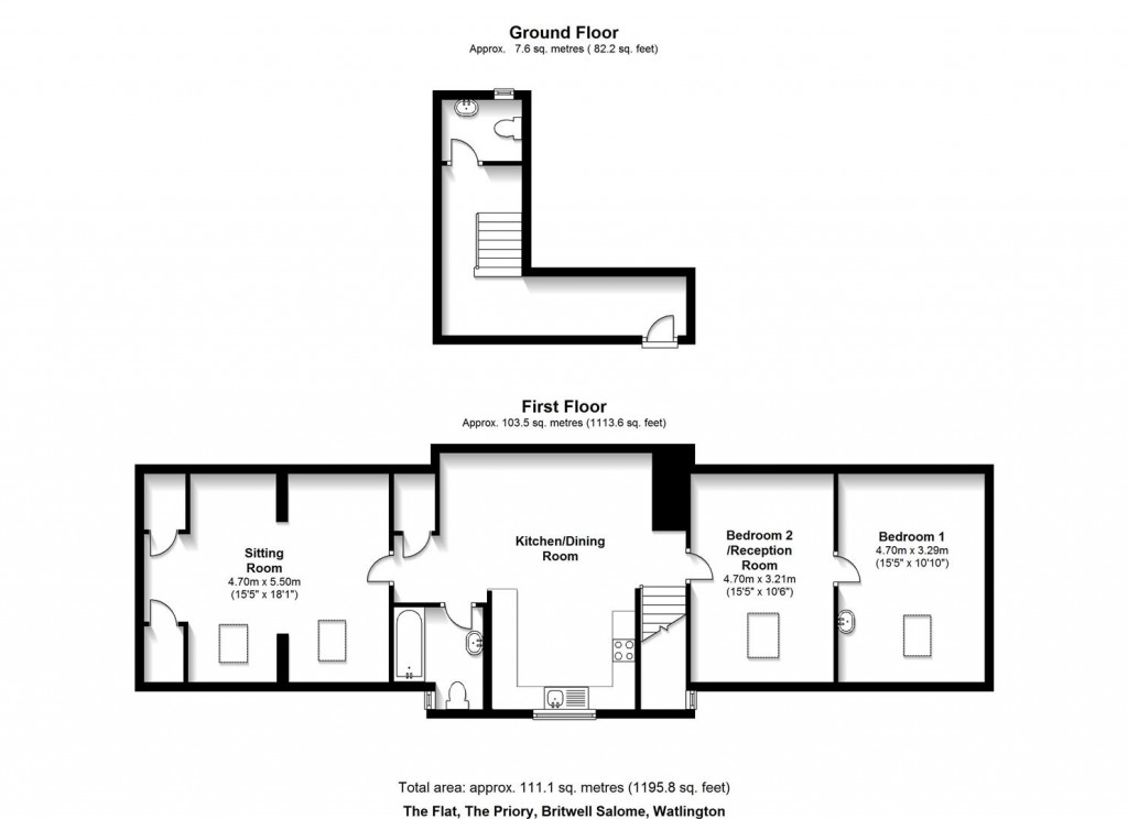
Floorplans For Britwell Salome

Description


A delightful self-contained first floor loft flat within a stable block providing one or two bedroom accommodation in an attractive rural setting with parking and garden. Available immediately furnished or unfurnished

Tenure: Assured Shorthold Tenancy -

Description: - A delightful self-contained first floor loft flat within a stable block providing one or two bedroom accommodation in an attractive rural setting with parking and garden.

Location: - Britwelll Salome occupies a lovely position at the foot of the Chiltern Hills towards which it enjoys some glorious views and access to the Icknield Way. There is a church, the reputable Goose restaurant and a farm shop. Watlington is not much more than two miles from the village and provides good local shopping and public amenities. Access to the M40 is about five miles distant at Junction 6, providing easy access to the Midlands, London and the regional business centres of Oxford and High Wycombe.

The Accommodation Is Arranged As Follows: - (All measurements are approximate)

Ground Floor -

Entrance: - Covered veranda to the approach with front door to:

Hall: - Having a tiled floor and stairs to the first floor.

Utility Area: - Having a plumbing point for a washing machine.

Cloakroom: - Low flush WC and washbasin.

First Floor -

Kitchen/Dining Room: - Dining area with tiled floor and halogen downlights opening to the kitchen: Wood faced wall and floor cabinets comprising cupboards and drawers with beech worktops and tiled splashbacks. Inset sink unit with mixer tap. Integral dishwasher and four ring hob with extractor hood over and oven and grill below. Integral refrigerator/freezer. Store cupboard. Door to:

Bathroom: - Wood panel enclosed bath in tiled surround with overhead shower fitting and folding shower screen. Low flush WC and pedestal washbasin with splashback, mirror and light over. Tiled floor and side window.

Reception Room/Bedroom: - 4.70 x 3.21 (15'5" x 10'6") - A bright and attractive room leading through to:

Bedroom: - 4.70 x 3.29 (15'5" x 10'9") - A double bedroom with washbasin.

Bedroom/Reception Room: - 5.50 x 4.70 (18'0" x 15'5") - A room of much character displaying the wooden roof structure. Two storage/wardrobe cupboards.

Outside -

Parking: - There is ample off-road parking

Garden: - The property has a sizeable enclosed garden to the approach

Services: - Mains water, drainage and electricity. Oil Fired Central Heating.

Local Authority: - South Oxfordshire District Council. Council Offices, Crowmarsh, Wallingford OX10 8HQ. Tel: 01491 823 000

Viewing: - Strictly by appointment with the agents - Robinson Sherston (Watlington). Telephone: 01491 614 000

Directions: - Proceed out of Watlington towards Benson on the B4009. After no more than one and a half miles you will approach the village of Britwell Salome. As you enter the village, turn right at the top of the hill just before the red telephone box into an unmade road. Follow the track down to the left and the stable block will face you.

Terms & Conditions -

Furnishings: - The property is offered unfurnished or part-furnished.

Availability: - Available immediately on an Assured Shorthold Tenancy with a minimum fixed period of six months. Long tenancy preferred.

Management Status: - Robinson Sherston do not manage this property.

Conditions: - Not suitable for: Smokers/pets

Rent Agreement: - Rent is payable per calendar month in advance, exclusive of Council Tax and all connected utility services.

Fees: - The in-going tenant will be responsible for the payment of the following fees, which are not refundable. Registration and agreement fee of £180 (inc VAT) as a contribution towards the costs of preparing the tenancy agreement. References: £48 (inc VAT) per person, company tenant or guarantor. Inventory Fees: Unfurnished - Between £96 and £192 inc VAT, depending on property size. Furnished - Between £108 and £216 inc VAT, depending on property size. Note: Unusually large or heavily furnished properties may be subject to higher costs. The tenant shall pay stamp duty, where applicable

Inventory - An inventory recording the condition and contents of the property will be provided and the landlord will be responsible for the charge for the check-in at the commencement of the tenancy. Upon termination a check-out will be arranged and paid for by the tenant. The tenant shall pay stamp duty where applicable.

Deposit: - A security deposit of one and a half month's rent to be held throughout the term of the tenancy as security against damage or any breach of agreement by the Tenant. A minimum 2 months deposit will be held if the tenant has a pet at the property.

Marketing: - Robinson Sherston reserve the right to continue to market the property until the Registration fee is received, even where the terms of a Tenancy have been agreed in principle.

Important Note: - These particulars do not form part of any offer or contract. They are for guidance only and have been prepared in all good faith to give a fair overall view of the property. Our descriptions are opinions and not statements of fact and tenants should satisfy themselves whether or not such descriptions match any expectations they may have of the property. Please ask for further information or verification of points relevant to your interest. All measurements, distances and aspects are given as a guide only and are approximate. If such details are fundamental to the letting, tenants must rely on their own enquiries, as they must where any reference is made to potential uses. At the time of preparing these particulars no specific tests were made and tenants should satisfy themselves that the property and any services, appliances, equipment or facilities are in good working order. It should not be assumed that the property remains as depicted; nor should any assumption be made with regard to the parts of the property that have not been depicted. The images depict only certain parts of the property and it should not be assumed that any of the furniture, furnishings or personal items are included in the letting.

Robinson Sherston

Robinson Sherston

One High Street
Watlington
Oxfordshire
OX49 5PH

+44 (0)1491 614000

Reference: 25990824

Request a viewing for this property

Simply fill out the form below or alternatively call us on 020 7839 0888

* Mandatory fields