3 Bedroom House
£375,000
Newlands Lane, Chichester, PO19

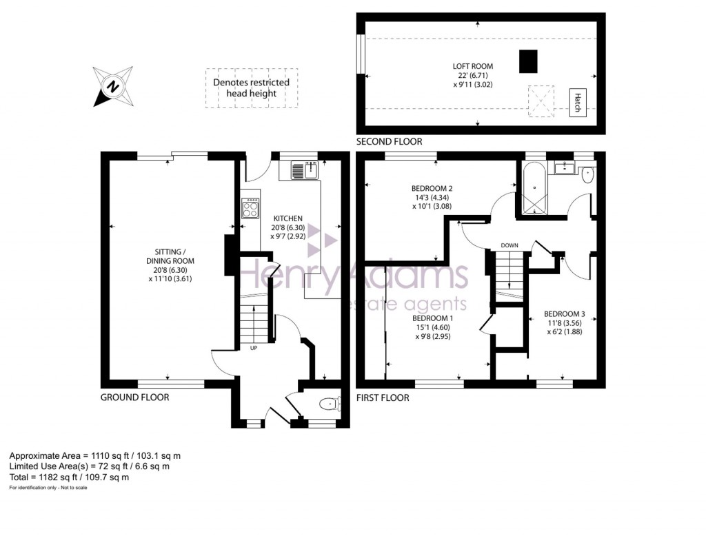
Floorplans For Newlands Lane, Chichester, PO19

Description


Situated in a sought-after estate just north of Chichester, this well maintained three-bedroom terraced house offers well-proportioned accommodation. Located within a level walk of the city centre, the property enjoys a convenient location within close proximity to popular schools and other local amenities.

The property has undergone various enhancements in recent years.  The ground floor features an entrance hall, WC, a modern kitchen equipped with an oven, hob, integrated dishwasher, sink and drainer with separate hot tap. A dual-aspect sitting/dining room with access to the south-facing garden completes the ground floor. Upstairs, the property offers a principal bedroom with fitted wardrobes, two additional bedrooms and a modern bathroom. The third bedroom includes a loft hatch with a ladder leading to a versatile loft room currently utilised as a games room.

Externally, the property benefits from off-road parking for two cars at the front and a private south-facing garden at the rear, comprising a lawn area and a decked space towards the rear of the garden.

Chichester District Council - 24/25 Tax Band C £1,977.87. EPC-C

AGENTS NOTE: In accordance with the provisions of the Estate Agent Act 1979 we confirm that the vendor is an employee of Henry Adams LLP.

From the Northgate circulatory system, proceed north west along St Pauls Road (B2178). Pass Parklands Road on your left and proceed up the hill and take the next turning on your left into Sherborne Road. Take the second turning on the right into Newlands Lane and number 39 can be found towards the end on the left. What3words - issue.hurray.warthog

Henry Adams

Henry Adams

Rowan House
Baffins Lane
Chichester
West Sussex
PO19 1UA

+44 (0)1243 533377

Reference: 194c9d20-574f-450d-a42c-e228c689c560

Request a viewing for this property

Simply fill out the form below or alternatively call us on 020 7839 0888

* Mandatory fields