£325,000
Clarkson Street, Ipswich, Suffolk, IP1 2JD

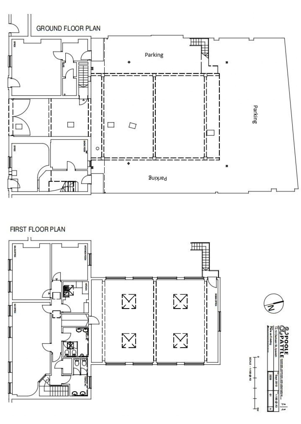
Floorplans For Clarkson Street, Ipswich, Suffolk, IP1 2JD

Description


A self-contained D1 or office building with accommodation on two floors extending in all to 2,408 sq ft (223 sqm) plus basement.

Main office, boardroom, five offices, reception area, fitted kitchen, male and female cloakrooms.

Substantial parking for 14 cars.

For Sale or To Let

Location

Clarkson Street lies just to the north west from the town centre which is in walking distance.  It forms a junction with St. Matthews Street/Norwich Road A1156, and to the west of the Civic Drive.  Ipswich is the county town of Suffolk offering a broad range of business, educational, recreational, shopping and travelling facilities.

Description

A self contained former D1 building which also suits a B1 Office Use with accommodation on 2 floors with ample rear car parking.  The accommodation has been refurbished to a high standard with contemporary fittings and is part heated and air conditioned.

The accommodation comprises two reception areas (one for No 14 and one for No 16) and a rear office on the ground floor.  On the first floor is a substantial main office, boardroom, two further offices, a fitted kitchen and male and female cloakrooms.  In addition is a cellar/basement extending to 365 sq ft (33.9 sqm).

The property benefits from part air-conditioning, full gas fired central heating, carpets and contemporary fittings.  There are security and fire alarms.

Outside there is a substantial car-parking area with a minimum of 14 designated parking spaces and a bicycle parking stand.

Planning

The building has previously benefitted from planning consent for residential conversion to create two 2 bedroom houses of 90 sqm and one 2 bedroom flat of 100 sqm with 3 garages (Reference IP10/00910/FUL).

Terms

For sale with vacant possession from June 2026 (when the current tenancy expires).

The property also may be available To Let—Terms on application.

Services

Mains water, electricity, gas and drainage connected.  Fire and security alarms.  Part air-conditioning.

Business Rates

Offices & Premises: Rateable Value £22,500 with effect from 1st April 2026.

Local Authority

Ipswich Borough Council

EPC

E (110)

Viewing

Strictly by appointment with the agent.

NOTES

1.   Every care has been taken with the preparation of these particulars, but complete accuracy cannot be guaranteed.  If there is any point, which  is of particular importance to you, please obtain professional confirmation. Alternatively, we will be pleased to check the information for you.  These Particulars do not constitute a contract or part of a contract.  All measurements quoted are approximate.  The Fixtures, Fittings & Appliances have not been tested and therefore no guarantee can be given that they are in working order.  Photographs are reproduced for general information and it cannot be inferred that any item shown is included.  No guarantee can be given that any planning permission or listed building consent or building regulations have been applied for or approved. The agents have not been made aware of any covenants or restrictions that may impact the property, unless stated otherwise.  Any site plans used in the particulars are indicative only and buyers should rely on the Land Registry/transfer plan. 

2.   The Money Laundering, Terrorist Financing and Transfer of Funds (Information on the Payer) Regulations 2017 require all Estate Agents to obtain proof of identity for our clients and tenants where required.

 

April 2026

 

Reference: 1447498

Request a viewing for this property

Simply fill out the form below or alternatively call us on 020 7839 0888

* Mandatory fields