4 Bedroom
£350,000
Kettleburgh, Nr Framlingham, Suffolk

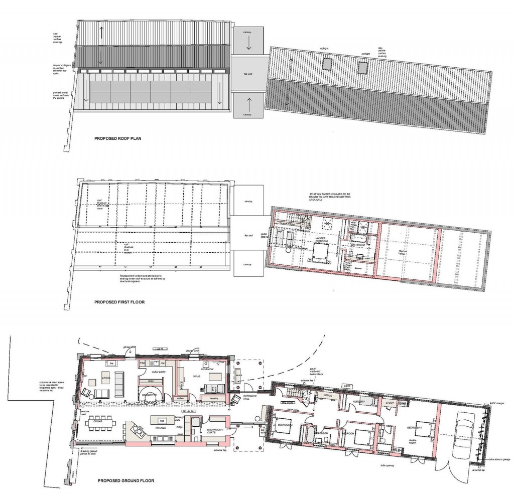
Floorplans For Kettleburgh, Nr Framlingham, Suffolk

Description


A Suffolk barn with planning permission to be converted to a contemporary dwelling of approximately 3,100 sq. ft to comprise a hall, open plan kitchen/dining/living, utility room, boot room, snug, shower room, four ground floor bedrooms with a bathroom and en-suite, along with a first floor principal bedroom with en-suite bathroom.  Grounds extending to 0.75 acres.  

Location
Rookery Farm Barn is situated between the village of Kettleburgh and the town of Framlingham.  Kettleburgh has a sought after public house, The Chequers.  Within 2 miles is Framlingham where there are a good selection of independent shops and businesses including cafés, restaurants, hairdressers, antique shops, a travel agency, doctors surgery, vets and delicatessen.  It is also home to the Crown Hotel, a Co-operative supermarket, Primary School, High School and Framlingham College. 

Directions
From Framlingham proceed in a southerly direction along Station Road and turn right towards Kettleburgh.  After approximately 1.5 miles, Rookery Farm Barn will be found on the right hand side.   

What3Words: ///realm.outraged.steaming 


Framlingham is surrounded by delightful villages, many of which have popular public houses.  The surrounding countryside has amenities such as golf at Woodbridge (12 miles) and Aldeburgh (13 miles).  The world famous Snape Maltings Concert Hall is within easy reach (10.5 miles).  There is also bird watching at the RSPB centre at Minsmere (15 miles).  The county town of Ipswich lies approximately 18 miles to the south-west and from here there are regular services to London’s Liverpool Street station.

Description
East Suffolk Council granted planning permission for the conversion of the barn under reference DC/24/3501/FUL on 6th March 2025.  Some of the associated plans are included within the particulars but further documents, including the planning permission are available from the East Suffolk Council planning website.  The permission allows for the conversion of the barn to form a residential dwelling.  The barn stands in grounds of 0.75 acres. 

Services 
It is understood that mains electricity is connected to the property.  The property has a right to connect to the neighbours water supply and to install a sub-meter.  There is no mains drainage and a buyer will need to install a sewage treatment plant with the appropriate rights to be provided for clean water discharge as required.  It is understood that there is phone/broadband in the immediate vicinity.  Interested parties should carry out their own investigations with regard to services.  

Local Authority East Suffolk Council; East Suffolk House, Station Road, Melton, Woodbridge, Suffolk IP12 1RT; Tel: 0333 016 2000. 

Community Infrastructure Levy (CIL)  An incoming purchaser will be liable for any Community Infrastructure Levy (CIL) which is currently set at £75,746.06.  It is understood that this figure is index linked.  However, it may be possible for an owner/builder to apply for an exemption.  Interested parties should carry out their own research with regard to CIL. 

Biodiversity Nett Gain (BNG) It is understood that the site is subject to BNG and interested parties are responsible for any costs/works.

Viewing Please contact Clarke and Simpson to inform of your intention to view the property. 

NOTES
1.  Every care has been taken with the preparation of these particulars, but complete accuracy cannot be guaranteed.  If there is any point, which  is of particular importance to you, please obtain professional confirmation. Alternatively, we will be pleased to check the information for you.  These Particulars do not constitute a contract or part of a contract.  All measurements quoted are approximate.  The Fixtures, Fittings & Appliances have not been tested and therefore no guarantee can be given that they are in working order.  Photographs are reproduced for general information and it cannot be inferred that any item shown is included.  No guarantee can be given that any planning permission or listed building consent or building regulations have been applied for or approved. The agents have not been made aware of any covenants or restrictions that may impact the property, unless stated otherwise.  Any site plans used in the particulars are indicative only and buyers should rely on the Land Registry/transfer plan. 

2. The Money Laundering, Terrorist Financing and Transfer of Funds (Information on the Payer) Regulations 2017 require all Estate Agents to obtain sellers’ and buyers’ identity.

3. The size of the buildings referred to in the particulars is a guide only and interested parties should undertake their own investigations in this regard. 

4.  Some images within the particulars are CGIs of the proposed development.

5.  A site plan of what is being sold is included in these particulars with the property outlined in red.  The retained property will have right of way over and right to lay/retain services through the land shaded blue.

March 2026

 

Clark & Simpson

Clark & Simpson

Well Close Square
Framlingham
Suffolk
IP13 9DU

+44 (0)1728 724200

Reference: 1437428

Request a viewing for this property

Simply fill out the form below or alternatively call us on 020 7839 0888

* Mandatory fields