£325,000
Flixton, Nr Lowestoft, Suffolk

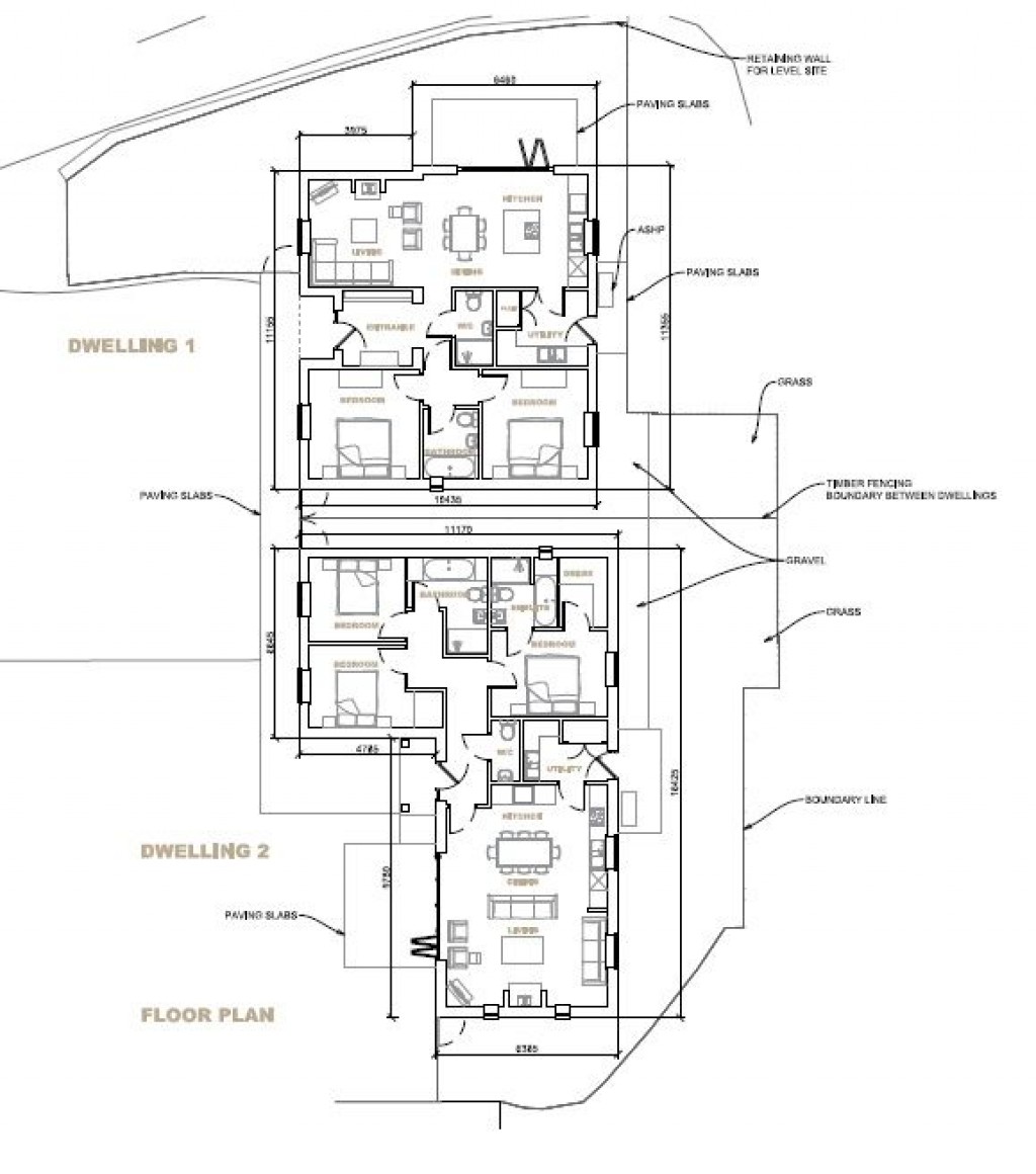
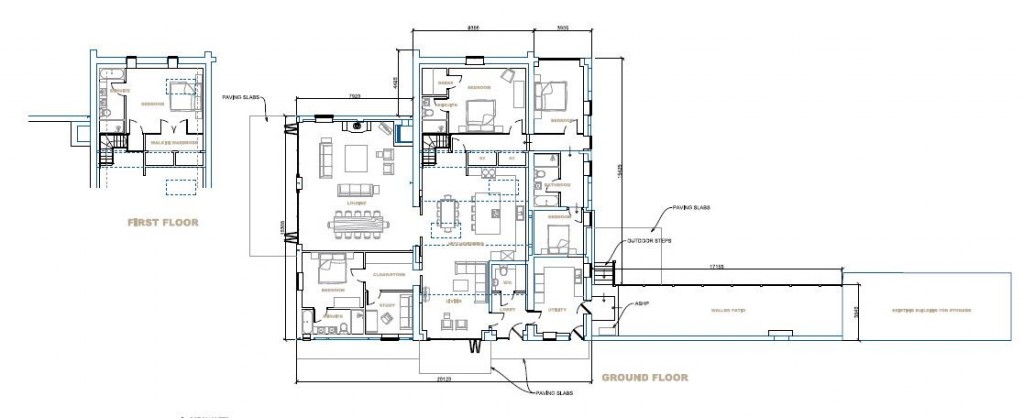
Floorplans For Flixton, Nr Lowestoft, Suffolk Floorplans For Flixton, Nr Lowestoft, Suffolk Floorplans For Flixton, Nr Lowestoft, Suffolk Floorplans For Flixton, Nr Lowestoft, Suffolk Floorplans For Flixton, Nr Lowestoft, Suffolk

Description


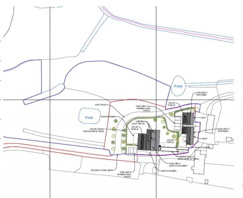
A development site extending to 1.65 acres with full planning permission to create 3 new dwellings. 

Charming location on a no-through road north-west of Lowestoft.

Vacant possession upon completion.

For Sale By Timed Online Auction - 15 April 2026

Method of Sale

The property is offered for sale by Unconditional Timed Online Auction on 15th April 2026 and on the assumption the property reaches the reserve price, exchange of contracts will take place upon the fall of the electronic gavel with completion occurring 20 working days thereafter. For details of how to bid please read our Online Auction Buying Guide. 

The vendor’s solicitor has prepared an Auction Legal Pack.  This is available to view online and interested parties should register online to receive updates. If you are viewing a hard set of these particulars or via Rightmove or alike please visit the Online Property Auctions section of Clarke and Simpson’s website to Watch, Register and Bid. 

Seller’s Solicitors

The seller’s solicitors are Suffolk Legal Services: Floor 3 Gold, Endeavour House, 8 Russell Road, Ipswich IP1 2BX. Tel: 01473 264242. We recommend that interested parties instruct their solicitor to make any additional enquiries prior to the auction. 

Location

The property is situated in a tranquil and rural setting at the end of a no-through road, with only one close neighbour. Flixton is a highly sought-after village on the outskirts of Lowestoft. Benefitting from open and picturesque countryside views, the village sits 4.3 miles north-west of Lowestoft and 8.6 miles south-west of Great Yarmouth. 

Directions

From the A47 north of Lowestoft, head westwards on the Blundeston Road towards the village of Blundeston. Upon reaching Flixton Road, turn left to travel back towards Lowestoft, before turning left again onto Whitehouse Farm Lane. The property will be found at the end of this single track road. 

What3Words location: ///caring.yourself.resettle

Description

A rural development site comprising a range of agricultural barns benefitting from full planning permission for the creation of 3 new dwellings totalling 556sqm (5,977sq.ft). The scheme was designed by Acorus Rural Property Services and achieved planning permission in November 2024 under planning reference: DC/24/3848/FUL.  Full copies of the planning permission are available within the Auction Legal Pack. 

The Accommodation 

A schedule of the indicative accommodation for the consented scheme is as follows:

Property                           Approx GIA                             Description
                                       Sq Ft        Sqm
Unit 1                             1064         99                            A semi-detached two bedroom new build house
Unit 2                             1258         117                          A semi-detached three bedroom new build house
Unit 3                             3655         340                          A detached five bedroom barn conversion
TOTAL                             5977        556
 

Please note the three bay Dutch barn to the north-west of the buildings which is included in some photographs is not included in the sale and will be removed prior to completion.

Services

We are informed mains water and electricity are connected. Interested parties should make their own enquiries regarding capacity and location of services.  

Community Infrastructure Levy (CIL)

Not applicable owing to existing floorspace.            

Viewing

Strictly by appointment with Clarke and Simpson.

Local Authority

East Suffolk Council; East Suffolk House, Station Road, Melton, Woodbridge, Suffolk IP12 1RT; 

Tel: 0333 016 2000.

NOTES

1.     Every care has been taken with the preparation of these particulars, but complete accuracy cannot be guaranteed.  If there is any point, which  is of particular importance to you, please obtain professional confirmation. Alternatively, we will be pleased to check the information for you.  These Particulars do not constitute a contract or part of a contract.  All measurements quoted are approximate.  The Fixtures, Fittings & Appliances have not been tested and therefore no guarantee can be given that they are in working order.  Photographs are reproduced for general information and it cannot be inferred that any item shown is included.  No guarantee can be given that any planning permission or listed building consent or building regulations have been applied for or approved. The agents have not been made aware of any covenants or restrictions that may impact the property, unless stated otherwise.  Any site plans used in the particulars are indicative only and buyers should rely on the Land Registry/transfer plan. 

2.  The Money Laundering, Terrorist Financing and Transfer of Funds (Information on the Payer) Regulations 2017 require all Estate Agents to obtain sellers’ and buyers’ identity.

3.  In the unlikely situation of our client considering an offer prior to auction, a premium price would have to be put forward and the purchaser would be required to sign the contract and put down a 10% deposit and pay the Buyers Administration Charge, well in advance of the auction date.  An offer will not be considered unless a potential buyer has read the legal pack and is in a position to immediately sign the contract.  The seller is under no obligation to accept such an offer.   It should be noted that Clarke and Simpson cannot keep all interested parties updated and at times will be instructed to accept an offer and exchange contracts without going back to any other parties first.  

4.   Additional fees:  Buyers Administration Charge - £1,200 including VAT (see Buying Guide).  Disbursements - please see the Legal Pack for any disbursements listed that may become payable by the purchaser upon completion. 

5.   The guide price is an indication of the sellers minimum expectations.  This is not necessarily the figure that the property will sell for and may change at any time prior to the auction.  The property will be offered subject to a reserve (a figure below which the auctioneer cannot sell the property during the auction) which we will expect to be set within the guide range of no more than 10% above a single figure guide.  

March 2026

 

Reference: 1420747

Request a viewing for this property

Simply fill out the form below or alternatively call us on 020 7839 0888

* Mandatory fields