£350,000
Walpole, Nr Halesworth, Suffolk

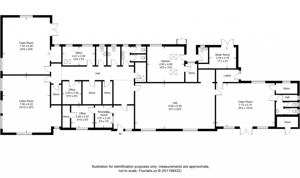
Floorplans For Walpole, Nr Halesworth, Suffolk Floorplans For Walpole, Nr Halesworth, Suffolk

Description


Former village primary school extending to 361sq.m (3881sq.ft) now requiring updating and renovation. 

Potential for alternative uses, subject to planning permission.

Grounds of approximately 1.44 acres 

For Sale By Timed Online Auction - 10th December 2025

Method of Sale

The property is offered for sale by Unconditional Timed Online Auction on 10 December 2025 and on the assumption the property reaches the reserve price, exchange of contracts will take place upon the fall of the electronic gavel with completion occurring 20 working days thereafter. For details of how to bid please read our Online Auction Buying Guide. 

The vendor’s solicitor has prepared an Auction Legal Pack. This is available to view online and interested parties should register online to receive updates. If you are viewing a hard set of these particulars or via Rightmove or alike please visit the Online Property Auctions section of Clarke and Simpson’s website to Watch, Register and Bid. 

Seller’s Solicitors

The seller’s solicitors are Birketts LLP; Providence House, 141-145 Princes Street, Ipswich, Suffolk IP1 1QJ. Tel: 01473 406270; For the attention of James Hall, email: james-hall@birketts.co.uk. We recommend that interested parties instruct their solicitor to make any additional enquiries prior to the auction.

Location

The School is located in the rural village of Walpole. The thriving town of Halesworth is approximately 8 miles from the property and is perhaps best known for its fantastic medieval castle, as well as being home to a good selection of independent shops and businesses including cafés, restaurants, hairdressers, antique shops, a travel agency and delicatessen.  It is also home to the Crown Hotel, a Co-operative supermarket and a twice weekly market. 

The Suffolk Heritage Coast, Woodbridge and Ipswich are all within short drives, offering the concert hall at Snape Maltings, RSPB Minsmere, beaches at Southwold, Walberswick, Thorpeness and Aldeburgh, and ample opportunities for sailing and golf.  Ipswich is about 16 miles to the south-west and here, there are direct trains to London’s Liverpool Street Station scheduled to take just over an hour.

Directions

From Halesworth, proceed south on the Walpole Road (B1117) towards the village of Walpole. Pass through the village centre and just before leaving the village turn right onto Cookley Road. The property will be found after a short distance on the left hand side. 

What3Words location: ///origins.boldest.guesswork

Description

Cookley & Walpole CEVCP Primary School was a functioning primary school until 2008 when a decision to close the school was taken due to a small student number of just 9 pupils. Although previously a primary school, the property was most recently used as the Attic PRU, pre-school nursery and hosted a range of community groups. The building is now vacant and offers an ideal renovation/development opportunity. 

The accommodation includes a main hall with vaulted ceiling, three large class rooms, a range of offices and stores, former school kitchen and toilet facilities. Externally, there is a boiler room housing a modern Gilles biomass boiler. 

We believe the planning use class to be: F1 (Learning and Non-residential Institutions). However, interested parties are advised to conduct their own investigations with the relevant planning authority. 

In all the accommodation extends to 361sq.m (3881sq.ft).

Outside

To the front of the property are two gated entrances which provide access to the tarmac playground in front of the building and car park to the side. Beyond is the former playing field which is mainly grass with mature trees and hedging to the boundaries. There is a dilapidated poly-tunnel which covers the site of a former swimming pool. The extensive outside space may lend itself to residential development, subject to planning permission. 

In all 1.44 acres (0.58ha). 

Viewing  Strictly by appointment with the agent.  

Services  We are informed mains water and electricity are connected and that the property benefits from a private drainage system (Septic tank). Biomass ‘Gillies’ Heating system. Interested parties should make their own enquiries regarding services. 

Energy Performance Certificate (EPC)  A(15) (full copy within Legal Pack).

Rateable Value £15,000.

Local Authority  East Suffolk Council.

NOTES

1.  Every care has been taken with the preparation of these particulars, but complete accuracy cannot be guaranteed.  If there is any point, which  is of particular importance to you, please obtain professional confirmation. Alternatively, we will be pleased to check the information for you.  These Particulars do not constitute a contract or part of a contract.  All measurements quoted are approximate.  The Fixtures, Fittings & Appliances have not been tested and therefore no guarantee can be given that they are in working order.  Photographs are reproduced for general information and it cannot be inferred that any item shown is included.  No guarantee can be given that any planning permission or listed building consent or building regulations have been applied for or approved. The agents have not been made aware of any covenants or restrictions that may impact the property, unless stated otherwise.  Any site plans used in the particulars are indicative only and buyers should rely on the Land Registry/transfer plan. 

2. The Money Laundering, Terrorist Financing and Transfer of Funds (Information on the Payer) Regulations 2017 require all Estate Agents to obtain sellers’ and buyers’ identity.

3. In the unlikely situation of our client considering an offer prior to auction, a premium price would have to be put forward and the purchaser would be required to sign the contract and put down a 10% deposit and pay the Buyers Administration Charge, well in advance of the auction date.  An offer will not be considered unless a potential buyer has read the legal pack and is in a position to immediately sign the contract.  The seller is under no obligation to accept such an offer.   It should be noted that Clarke and Simpson cannot keep all interested parties updated and at times will be instructed to accept an offer and exchange contracts without going back to any other parties first.  

4.  Additional fees:  Buyers Administration Charge  - £900 including VAT (see Buying Guide).  Disbursements - please see the Legal Pack for any disbursements listed that may become payable by the purchaser upon completion. 

5.  The guide price is an indication of the sellers minimum expectations.  This is not necessarily the figure that the property will sell for and may change at any time prior to the auction.  The property will be offered subject to a reserve (a figure below which the auctioneer cannot sell the property during the auction) which we will expect to be set within the guide range of no more than 10% above a single figure guide.  

October 2025

 

Clark & Simpson

Clark & Simpson

Well Close Square
Framlingham
Suffolk
IP13 9DU

+44 (0)1728 724200

Reference: 1237506

Request a viewing for this property

Simply fill out the form below or alternatively call us on 020 7839 0888

* Mandatory fields