£275,000
Stradbroke, Suffolk

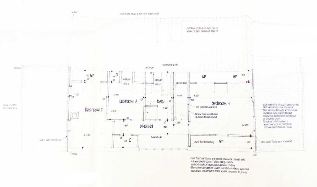
Floorplans For Stradbroke, Suffolk Floorplans For Stradbroke, Suffolk

Description


Planning permission has been implemented to convert a traditional Suffolk barn with outbuildings to create an impressive four bedroom dwelling and gardens on a site of approximately 0.6 acres (0.24 hectares) in all.

Location
The barn is set along the Laxfield Road, a short distance to the east of the village of Stradbroke.  Stradbroke lies between the market towns of Framlingham, Diss and Eye and offers local shops and services including a Spar convenience store that caters for all day-to-day needs, a bakery, butchers, medical centre, village hall, children's play areas, hairdressing salon, library/Post Office,  two public houses, a Church of England VC Primary School and Stradbroke High School.  There is also a sports centre with a swimming pool, gym and tennis courts, as well as numerous clubs and societies, including a popular cricket club, tennis club, bowls club and football clubs.  The South Norfolk town of Diss, with Morrisons, Tesco and Aldi supermarkets, lies about 10.5 miles to the north-west of the property. From here there are direct trains to Norwich and London's Liverpool Street. Framlingham, with its medieval castle, is approximately 11 miles to the south, and the Heritage Coast, with the popular centres of Southwold, Walberswick and Dunwich, is about 18 miles to the east. The county town of Ipswich lies about 25 miles to the south, and Norwich is about 29 miles to the north.  

Directions
Heading in an easterly direction on the B1117 from the centre of Stradbroke, proceed out of the village passing the cemetery on the left hand side. Continue along this road for approximately one mile and the barn will be found  short way along on the right hand side after Barley Green Garage. 

For those using the What3Words app: ///mole.smarting.remarking

Description
Planning permission was originally granted by Mid Suffolk District Council on 19th June 1989 - Reference 439/89 - for the change of use of this traditional Suffolk agricultural barn to create one residential dwelling with garaging, an ancillary outbuilding and gardens.  A copy of the planning permission is included within these particulars together with extracts of the consented plans.  

We are advised by the vendors that this planning permission was implemented within the 5 year timescale by virtue of installing a footing and wall within the garage.   We are further advised that these works were inspected and approved by the local planning authority at the time, and written confirmation in this regard is awaited.  In 2016 the vendors also overhauled the roof of the main barn and installed Velux window lights in accordance with the planning permission. 

The consented plans provide for an impressive dwelling of nearly 2,200 sq ft (204 sqm), with the ground floor accommodation comprising an entrance hall, spacious sitting room, kitchen, dining room, study, playroom and utility room, together with a double bedroom with adjoining bathroom.   On the first floor it is proposed that there will be a landing area, principal bedroom, two further bedrooms and a bathroom.  

Outside the plans provide for a parking and turning area to the front of the barn, that connect with the adjoining proposed garage.  To the rear the designs provide for a courtyard garden with a number of the ancillary buildings to be demolished, but with some retained to serve as useful storage or workshop facilities.  A number of the proposed outbuildings that were originally earmarked for demolition could well be retained and repurposed, subject to the necessary consents.  

In all, the proposed area to be sold extends to approximately 0.6 acres (0.24 hectares).
 
Services
We understand that electricity is already connected to the site.  A new mains water connection will need to be installed, and we understand that a mains supply is available in the public highway.  Prospective purchasers should note that there is an existing water supply to the site from the retained land and this will remain in situ for a period of up to 6 months post completion at no charge to the purchaser.   Drainage is already installed by way of a private treatment plant which discharges to the nearby ditch line and we are advised that this meets the 2020 regulations.  However, interested parties should satisfy themselves by carrying out their own investigations with regard to the availability and capacity of services.  

Local Authority  
Mid Suffolk District Council, Endeavour House, 8 Russell Rd, Ipswich IP1 2BX; Tel: 0300 123 4000.
 
Architects 
The architects involved with the project to date are Hollins, 41 Market Hill, Framlingham, IP13 9BA;  Tel: 01728 723959 or email jamest@hollins.co.uk.

Community Infrastructure Levy (CIL)
We understand that there is no Community Infrastructure Levy (CIL) payable, given the historic nature of the consent. However, prospective purchasers should satisfy themselves in this regard and any detailed enquiries relating to CIL should be referred to the local planning authority, Mid Suffolk District Council;  infrastructure@baberghmidsuffolk.gov.uk. 

Viewing
Strictly by appointment with the selling agent. 

NOTES
1. Every care has been taken with the preparation of these particulars, but complete accuracy cannot be guaranteed.  If there is any point, which  is of particular importance to you, please obtain professional confirmation. Alternatively, we will be pleased to check the information for you.  These Particulars do not constitute a contract or part of a contract.  All measurements quoted are approximate.  The Fixtures, Fittings & Appliances have not been tested and therefore no guarantee can be given that they are in working order.  Photographs are reproduced for general information and it cannot be inferred that any item shown is included.  No guarantee can be given that any planning permission or listed building consent or building regulations have been applied for or approved. The agents have not been made aware of any covenants or restrictions that may impact the property, unless stated otherwise.  Any site plans used in the particulars are indicative only and buyers should rely on the Land Registry/transfer plan. 

2. The Money Laundering, Terrorist Financing and Transfer of Funds (Information on the Payer) Regulations 2017 require all Estate Agents to obtain sellers’ and buyers’ identity.

3. The barn forms part of the larger Title for Mulberry Lodge.  It will therefore be necessary for the Title to be split.

November 2025

Clark & Simpson

Clark & Simpson

Well Close Square
Framlingham
Suffolk
IP13 9DU

+44 (0)1728 724200

Reference: 1209373

Request a viewing for this property

Simply fill out the form below or alternatively call us on 020 7839 0888

* Mandatory fields