3 Bedroom
£195,000
Bucklesham, Nr Ipswich, Suffolk

Floorplans For Bucklesham, Nr Ipswich, Suffolk Floorplans For Bucklesham, Nr Ipswich, Suffolk Floorplans For Bucklesham, Nr Ipswich, Suffolk Floorplans For Bucklesham, Nr Ipswich, Suffolk Floorplans For Bucklesham, Nr Ipswich, Suffolk

Description


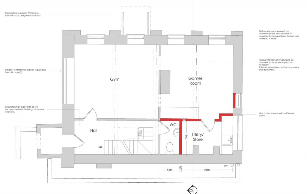
Planning permission is in place to refurbish/convert this former watermill which has most recently been used as offices, to a residential dwelling that on the ground floor will comprise a hallway, gym, games room, utility room and cloakroom.  On the first floor will be an open-plan kitchen/dining room, sitting room and also a study, and on the second floor, three bedrooms and a bathroom.  In addition will be off-road parking and a garden.

Location
Bucklesham Mill is situated between Bucklesham and Newbourne.  It stands immediately adjacent to the Mill River and water works.  The villages are rural but not remote and there is convenient access to the A12, A14, Ipswich, Felixstowe and Woodbridge.  Newbourne offers a number of walking and cycling routes, The Fox Inn public house and a sought after Nourish café.  The village of Bucklesham benefits from a primary school and a public house, The Shannon.  

Directions
From the centre of Newbourne adjacent to the pub, proceed towards the village hall and having passed the hall on your left, continue along the road, which is Mill Road.  Bear round to the right and then bear round to the left onto Watermill Road proceeding out of the village.  Cross the river where the mill will be found on your left hand side.

For those using the What3Words app: /// laying.jokes.autumn

Description
The watermill is believed to have been built in 1829 along with its adjacent mill house which was demolished many years ago.  A historic photograph within these particulars shows both the mill and the former mill house.  Planning permission was granted by East Suffolk Council under reference DC/24/3525/FUL on 10th July 2025 for the conversion from former use as offices to a residential dwelling.  Some of the associated plans are included within the particulars but further documents are available from the East Suffolk Council Website.

Services
It will be the responsibility of the new owner to install services to the site.  However, the vendors had an indicative estimate of £4,250 for water connection and £10,965.60 for the installation of a sewage treatment plant.  A basic estimate for the connection of electricity, on the assumption that the cables do not impact any roads/public safety, is £7,761 plus VAT.  Whilst it is hoped that this information is helpful, interested parties should carry out their own research and must not rely on this information.  

EPC Rating
G - (Copy available from the agents upon request).

Community Infrastructure Levy (CIL)
East Suffolk Council’s infrastructure team have confirmed that the CIL Liability is £34,511.53 which is index linked.  A copy of the CIL Liability Notice is available from the agent.  Should the mill be purchased by an owner/builder, it may be possible to apply for an exemption.  Interested parties should carry out their own investigations.

Local Authority
East Suffolk Council; East Suffolk House, Station Road, Melton, Woodbridge, Suffolk IP12 1RT; Tel: 0333 016 2000.

NOTES
1.  Every care has been taken with the preparation of these particulars, but complete accuracy cannot be guaranteed.  If there is any point, which  is of particular importance to you, please obtain professional confirmation. Alternatively, we will be pleased to check the information for you.  These Particulars do not constitute a contract or part of a contract.  All measurements quoted are approximate. The Fixtures, Fittings & Appliances have not been tested and therefore no guarantee can be given that they are in working order.  Photographs are reproduced for general information and it cannot be inferred that any item shown is included.  No guarantee can be given that any planning permission or listed building consent or building regulations have been applied for or approved. The agents have not been made aware of any covenants or restrictions that may impact the property, unless stated otherwise.  Any site plans used in the particulars are indicative only and buyers should rely on the Land Registry/transfer plan. 

2. The Money Laundering, Terrorist Financing and Transfer of Funds (Information on the Payer) Regulations 2017 require all Estate Agents to obtain sellers’ and buyers’ identity.

 
November 2025

Clark & Simpson

Clark & Simpson

Well Close Square
Framlingham
Suffolk
IP13 9DU

+44 (0)1728 724200

Reference: 1194949

Request a viewing for this property

Simply fill out the form below or alternatively call us on 020 7839 0888

* Mandatory fields