5 Bedroom Detached
£750,000
Hollesley, Near Woodbridge, Suffolk

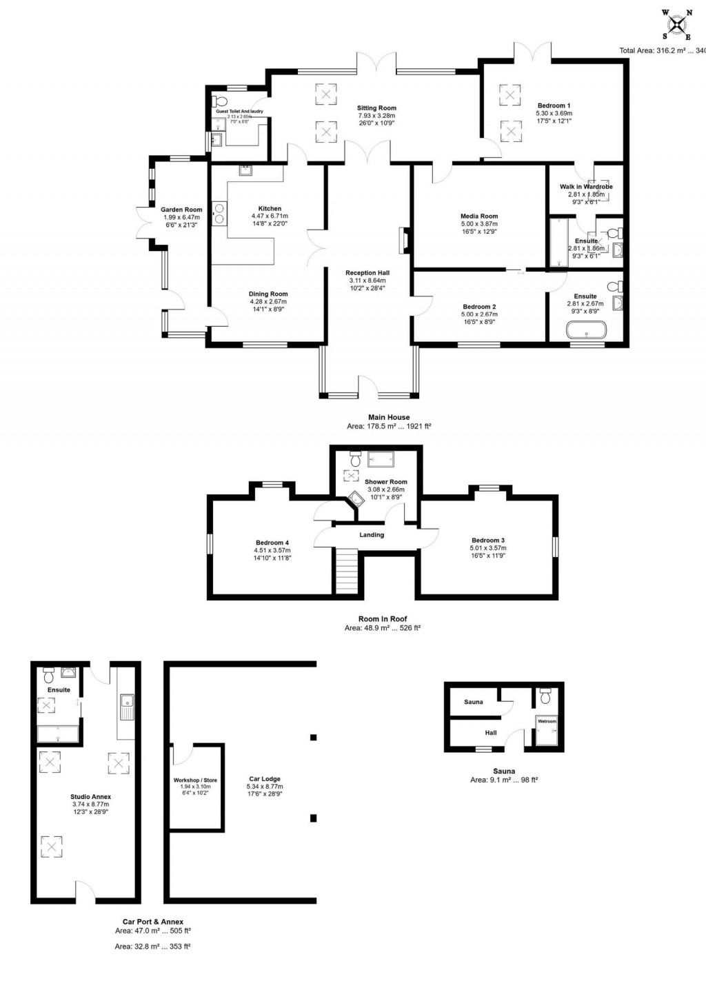
Floorplans For Hollesley, Near Woodbridge, Suffolk

Description


Reception hall, sitting room, kitchen/dining room, media room, garden room and utility/cloakroom.  Principal ground floor bedroom with dressing area and en-suite wet room and guest double bedroom with en-suite bathroom.
Two first floor double bedrooms and shower room.
Successful income producing one bedroom studio holiday let.
Triple cartlodge and large shingled driveway.  Range of useful outbuildings including a sauna with shower and WC.
Landscaped gardens and grounds of approximately half an acre.


Location
The property is set along Boyton Road on the edge of the rural village of Hollesley.  Hollesley benefits from a village school, pub and shop.  Shingle Street is just 2.5 miles from the property.  The popular Ramsholt Arms, which is set adjacent to the River Deben, is 4.5 miles.  Hollesley is approximately 8 miles to the south east of the riverside town of Woodbridge, which offers a selection of shops, pubs, restaurants, a cinema and swimming pool.  It also has excellent schooling.  The county town of Ipswich is 16 miles. There are also some direct services from Woodbridge to London each day as well as a branch line connection at nearby Melton.  The Heritage Coast lies within about 13 miles with popular centres such as Orford, Aldeburgh, Thorpeness, Walberswick and Southwold.       

Directions
From the Woods Lane roundabout on the A12, head into Melton (A1152). Go straight over the traffic lights, the railway crossing and at the mini roundabout turn right onto the B1038.  After passing Sutton Hoo on your right, take the next turning on your left where signposted to Hollesley. Continue along this road for approximately 3 miles, passing the Woodbridge army base, taking the next turning left where signposted to Boyton and Butley. Continue along this road for approximately 1 mile and at the cross roads with the water tower turn left where the property will be found a short way along on the left hand side.

For those using the What3Words app: /// driveways.suspends.transmits

Description
Originally starting life as a relatively modest bungalow, 5 Boyton Road is now an impressive, well appointed and spacious four double bedroom extended chalet house with a popular income producing studio let, that occupies a wonderful rural location on the edge of the village of Hollesley.  

The current vendors acquired the property in 2015 and during their tenure have extended, reconfigured and refurbished the property throughout, as well as creating a separate studio above the triple cartlodge.  This currently operates as a very successful income producing holiday let, but could also be used as annexe accommodation for family members.  The gardens and grounds have also been landscaped.  

In all the accommodation extends to nearly 2,500 sq. ft (232 sqm) and comprises an impressive double height reception hall with bespoke oak staircase rising to the first floor bedroom accommodation. The reception hall is sufficiently large enough to accommodate an informal seating area, and links through to the more formal sitting room at the rear.  This is a stunning addition to the property with a ‘cathedral style’ aluminium framed glazed gable that offers direct access to the westerly facing garden at the rear.  

The ground floor accommodation also includes a well fitted kitchen/dining room, with marble worksurfaces, a peninsular breakfast bar and a double hob oil-fired Aga.  In addition there is the garden room, that enjoys the morning sun, and a versatile utility room with WC and shower area.

The vendors designed the ground floor accommodation with flexibility in mind.  The principal bedroom measures approximately 17’ x 12’ and benefits from French doors that open onto the decked terrace at the rear.  The bedroom also benefits from a dressing room, with fitted furniture, and an en-suite wet room.   There is also a second double bedroom, or study/playroom if required, which also benefits from its own en-suite bathroom.  Located between the formal sitting room and bedroom accommodation is the media room, with its range of fitted shelving - ideal for watching films or listening to music.  

On the first floor there are two further double bedrooms and a shower room - although one of the bedrooms is currently used as a hobby room.  

Outside is the triple bay oak framed cartlodge, which incorporates a secure store/workshop.  Above this, accessed via an external staircase, is the studio.  This is currently operated as a very successful self-catering holiday let, and generates circa £7,000 during the holiday periods.  The planning permission also allows for it to be used as annexe accommodation for family members if required.

The gardens and grounds extend to nearly half an acre and comprise a substantial shingled driveway to the front of the property, together with a landscaped raised garden.  At the rear, the westerly facing garden enjoys the sun during the afternoon and into the evening, and overlooks open farmland.  The garden has been divided into a number of different areas including the decked terrace, that can be directly accessed from the sitting room and principal bedroom, the ‘Mediterranean garden’ that enjoys the sun during the morning, together with a more traditional area towards the rear.  The rear garden also includes a useful timber framed storage shed and an open fronted summerhouse with covered seating during the better weather.  There is also a separate building containing the sauna, shower and WC.  

Viewing - Strictly by appointment with the agent.  

Services - Mains electricity, water and drainage connected.  Oil-fired boiler serving the central heating and hot water systems.

Broadband - To check the broadband coverage available in the area click this link – https://checker.ofcom.org.uk/en-gb/broadband-coverage.  We are advised that fibre broadband is available up to 1800 gbs

Mobile Phones - To check the mobile phone coverage in the area click this link – https://checker.ofcom.org.uk/en-gb/mobile-coverage

EPC Rating = C (Copy available from the agents upon request).

Council Tax  Band D; £2,208.38 payable per annum 2025/2026

Local Authority - East Suffolk Council; East Suffolk House, Station Road, Melton, Woodbridge, Suffolk IP12 1RT; Tel: 0333 016 2000 


NOTES
1.  Every care has been taken with the preparation of these particulars, but complete accuracy cannot be guaranteed.  If there is any point, which  is of particular importance to you, please obtain professional confirmation. Alternatively, we will be pleased to check the information for you.  These Particulars do not constitute a contract or part of a contract.  All measurements quoted are approximate. The Fixtures, Fittings & Appliances have not been tested and therefore no guarantee can be given that they are in working order.  Photographs are reproduced for general information and it cannot be inferred that any item shown is included.  No guarantee can be given that any planning permission or listed building consent or building regulations have been applied for or approved. The agents have not been made aware of any covenants or restrictions that may impact the property, unless stated otherwise.  Any site plans used in the particulars are indicative only and buyers should rely on the Land Registry/transfer plan. 

2. The Money Laundering, Terrorist Financing and Transfer of Funds (Information on the Payer) Regulations 2017 require all Estate Agents to obtain sellers’ and buyers’ identity.

3. The vendors have completed a Property Information Questionnaire about the property and this is available to be emailed to interested parties. 
 
September 2025

Clark & Simpson

Clark & Simpson

Well Close Square
Framlingham
Suffolk
IP13 9DU

+44 (0)1728 724200

Reference: 1194829

Request a viewing for this property

Simply fill out the form below or alternatively call us on 020 7839 0888

* Mandatory fields