£185,000
Copdock, Ipswich

Description


PLANNING Reserve matters was granted in December 2025 through Babergh & District Council. The application can be found on the council website under the ref: DC/25/04497 for further information. 

SERVICES & ACCESS The landowner owns the private road coming off London Road and will grant full rights of access to the purchaser.

Within close proximity of the land is water and electricity which the buyers can connect on to with there own meters. At the rear of the parcel of land is large scale septic tank which is in use for another dwelling which the owner will allow an easement to connected on to.

 

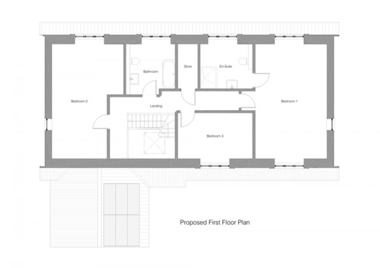
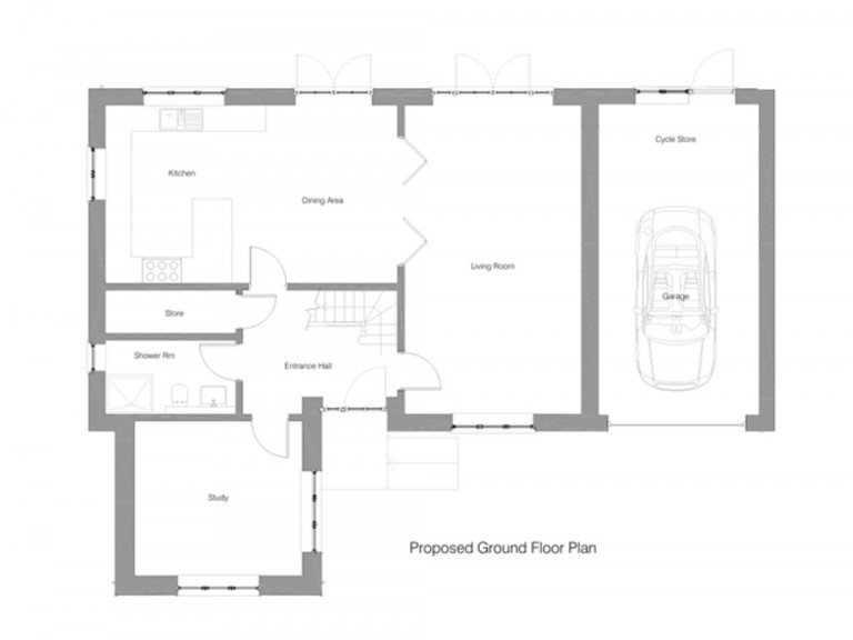
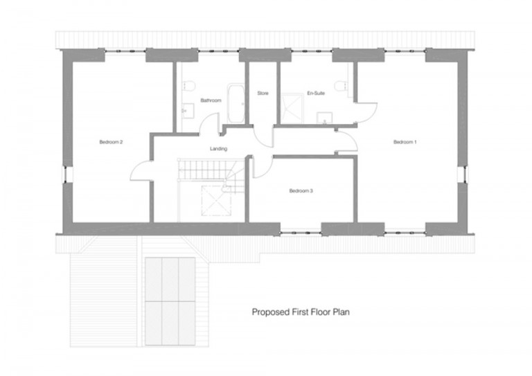
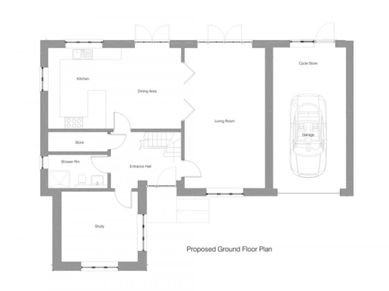
PROPERTY Reserve matters have been passed for a detached chalet style dwelling which could be either three bedroom with a ground floor study or a four bedroom property. The property measures around 1959sq/ft with the garage separately measuring 280sq/ft.

Ground floor: A very appealing layout which consists of entrance hallway with study/bedroom, shower room, kitchen diner and separate living room with storage areas throughout.

First Floor: The first floor is equally appealing with three generously proportioned bedrooms, one with an en-suite, and the other two being served by a family bathroom.

The plot is located within good catchment of Ipswich, Colchester and London due to its easy access on to both the A12 & A14.
 

DISCLAIMER All information provided is to the best of our knowledge however we highly recommend buyers make there own investigations as the information provided cannot be solely relied upon.  
David Burr

David Burr

Parker's Lodge
Honey Tye
Leavenheath
Suffolk
CO6 4NX

+44 (0)1206 263007

Reference: 100424029777

Request a viewing for this property

Simply fill out the form below or alternatively call us on 020 7839 0888

* Mandatory fields