4 Bedroom
£300,000
Haverhill, Suffolk, Haverhill

Description


Withersfield lies in attractive countryside on the Suffolk/Cambridgeshire border. The village surrounds a large green and benefits from a pub and a fine church, which dates back to 1480. Cambridge is approximately 17 miles to the west. There is also easy access to the A14 and M11 and via these roads to the national road network. There are mainline stations at Cambridge, Whittlesford and Audley End, which offer a commuter service to London.

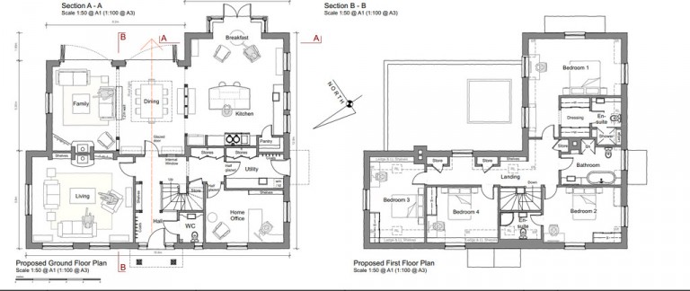
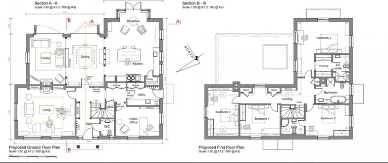
Planning Permissions have been approved for the erection of a 3,000 square foot detached house with double cart lodge sitting in a 0.35 acre plot with countryside views. The property currently situated on the site has approval to be removed and replaced with the new dwelling. The proposed dwelling enjoys an open plan Kitchen/Family/Dining Room with separate Sitting Room and Home Office and on the first floor there are 4 generous bedrooms including an impressive master suite with stunning views.

Outside the new dwelling will enjoy parking for multiple vehicles behind a gated entrance with double cart lodge and the grounds will benefit from a range of mature existing and some new trees and a particular highlight is the large south facing dining terrace.

SERVICES: To be installed in the New Dwelling. On Site electricity and water supply.

LOCAL AUTHORITY: West Suffolk Council.

VIEWING: Strictly by prior appointment through DAVID BURR.

NOTICE: Whilst every effort has been made to ensure the accuracy of these sales details, they are for guidance purposes only and prospective purchasers or lessees are advised to seek their own professional advice as well as to satisfy themselves by inspection or otherwise as to their correctness. No representation or warranty whatsoever is made in relation to this property by David Burr or its employees nor do such sales details form part of any offer or contract.
 
David Burr

David Burr

11 Market Hill
Clare
Suffolk
CO10 8NN

+44 (0)1787 277811

Reference: 100424024923

Request a viewing for this property

Simply fill out the form below or alternatively call us on 020 7839 0888

* Mandatory fields