1 Bedroom Retirement Property
£155,000
Off Manor Farm Court, Selsey, PO20

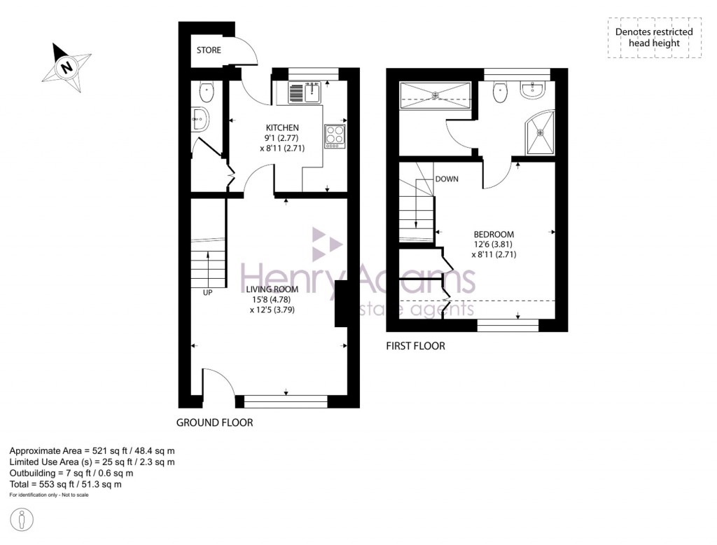
Floorplans For Off Manor Farm Court, Selsey, PO20

Description


Set within a regarded retirement complex, this charming one-bedroom end terrace cottage offers an ideal setting for those seeking comfort and convenience in later life. The property is age-restricted to residents over 60, ensuring a peaceful and supportive community atmosphere. The modern kitchen is designed for practicality in a u shape for ease of use, while the ground floor cloakroom adds further convenience. The cottage benefits from double glazing and electric heating, ensuring year-round comfort. Residents have access to a communal lounge, perfect for socialising or relaxing, as well as a guest suite that can be pre-booked for visitors. With no onward chain, this property is ready for immediate occupation.

The cottage is set amidst beautifully maintained communal gardens, which surround the complex and create a tranquil, green environment. Residents can enjoy strolling along pathways bordered by well-tended flower beds and lawns, or spend time at the picturesque duck pond, complete with seating areas for quiet reflection. The communal gardens are designed for all residents to enjoy, offering both privacy and opportunities to connect with neighbours. Off-street parking is provided on a first come, first serve basis, ensuring convenience for both residents and their guests. This delightful outdoor setting perfectly complements the comfortable accommodation, making it an excellent choice for those seeking a relaxed and sociable retirement lifestyle.

Reference: 029b5ede-de83-4179-b75a-88740b5bb464

Request a viewing for this property

Simply fill out the form below or alternatively call us on 020 7839 0888

* Mandatory fields